Falls Sie diese Immobilie woanders zu einem günstigeren Preis gesehen haben, gilt der gleiche Preis auch bei uns!
Link zu häufig gestellten Fragen
Es wird nicht die genaue Adresse der Immobilie angezeigt
Besichtigung über VIDEO ANRUF
RUFEN SIE UNS AN +385 23 300 000

Zum Verkauf steht ein Haus mit zwei Pools und ausgezeichnetem Meerblick auf der Insel Vir. Die Immobilie befindet sich 50 m vom Meer und 2,4 km vom Ortszentrum entfernt. Das Baujahr ist 2026, und das Haus befindet sich auf einem Grundstück mit 322 m².
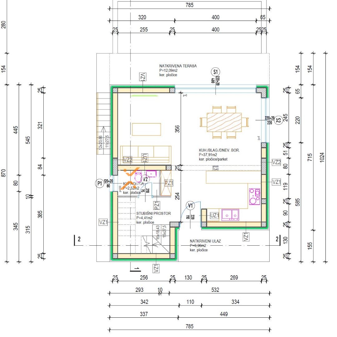
Im Untergeschoss befindet sich ein Keller mit einer Fläche von 10,00 m². Im Erdgeschoss befinden sich ein überdachter Eingang, ein WC, eine Küche mit Essbereich und Wohnzimmer, eine Treppe sowie eine überdachte Terrasse. Die Fläche des Erdgeschosses beträgt 63,89 m².
Im ersten Stock befinden sich ein Flur und drei Schlafzimmer, jedes mit eigenem Badezimmer. Die Fläche des ersten Stocks beträgt 55,85 m². Im zweiten Stock befinden sich der Zugang zur Terrasse, eine Küche auf der Dachterrasse, eine offene Terrasse sowie ein Pool. Die Fläche des zweiten Stocks beträgt 54,92 m².
Die Gesamtfläche des Hauses beträgt 184,66 m². Zum Haus gehören ein Garten und zwei Parkplätze.
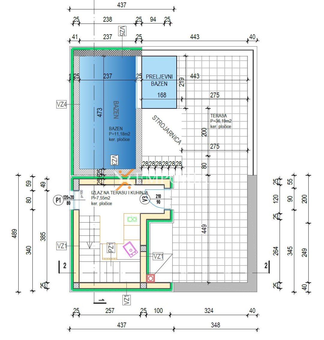
Das Haus verfügt über zwei Pools. Im Erdgeschoss befindet sich ein Pool mit 21 m² mit Folie und Hydromassage. Im zweiten Stock befindet sich ein Pool mit 13,50 m² mit Folie, Hydromassage und Überlaufsystem.
Im gesamten Haus ist elektrische Fußbodenheizung installiert. Das Haus verfügt über vier Klimaanlagen (Wohnzimmer und Schlafzimmer). Das Gebäude ist aus Ziegel-Thermoblock gebaut, während die Fassade 10 cm Styropor-Dämmung und Steinverkleidung hat. Die Fenster sind Aluminiumfenster mit elektrischen Rollläden, Moskitonetzen und Dreifachverglasung. Die Böden sind mit Fliesen belegt, und die Eingangstür ist einbruchhemmend.
Im Erdgeschoss befindet sich ein elektrischer Außengrill, während sich auf der Dachterrasse ein Steingrill befindet. Der erwartete Energieausweis ist A.
Die Insel Vir ist eine der beliebtesten touristischen Destinationen in Kroatien. Sie liegt im äußersten Nordwesten der Gespanschaft Zadar. Sie ist umgeben mit Meer, dem Povljana Kanal und zahlreichen kleineren Buchten. Mit dem Festland ist sie durch eine Brücke verbunden.
Die 31,43 km lange Küste der Insel bietet eine große Wahl von wunderschönen Sand-, Stein- und Kieselstränden, an. Es sind volle Strände mit einer großen Auswahl von Inhalten und Aktivitäten, aber auch intime Buchten, umgeben mit einer unberührten Natur, zu finden. Die Strände der Insel Vir, teilweise auch unter Pinien gelegen, und das Kristall blaue Meer machen diese Insel zur perfekten Wahl für einen idealen Familienurlaub.
Außer dem Tourismus in den Sommermonaten, Vir ist auch im Winter eine Ruheoase für ein entspanntes Familienleben. Die Insel bietet alle notwendigen Inhalte für einen entspannten Alltag: Schule, Kindergarten, Geschäfte, Post, Restaurants und Cafés.
Vir ist von Zadar 26 km und von der nächsten Stadt, Nin, nur 12 km entfernt.
Mehr über diese Lage finden Sie unter dem Link Vir.
Entdecken Sie unser vollständiges Angebot an Immobilien zum Verkauf .
Falls Sie diese Immobilie woanders zu einem günstigeren Preis gesehen haben, gilt der gleiche Preis auch bei uns!
Link zu häufig gestellten Fragen
