Falls Sie diese Immobilie woanders zu einem günstigeren Preis gesehen haben, gilt der gleiche Preis auch bei uns!
Link zu häufig gestellten Fragen
Es wird nicht die genaue Adresse der Immobilie angezeigt
Besichtigung über VIDEO ANRUF
RUFEN SIE UNS AN +385 23 300 000

Zum Verkauf steht eine luxuriöse Wohnung in einem Neubau in Sukošan, nur 280 m vom Meer und 900 m vom Ortszentrum entfernt. Die Wohnung befindet sich im Erdgeschoss eines modernen Gebäudes mit Aufzug, was den Wohnkomfort erhöht und eine nachhaltige Wertsteigerung der Immobilie ermöglicht.
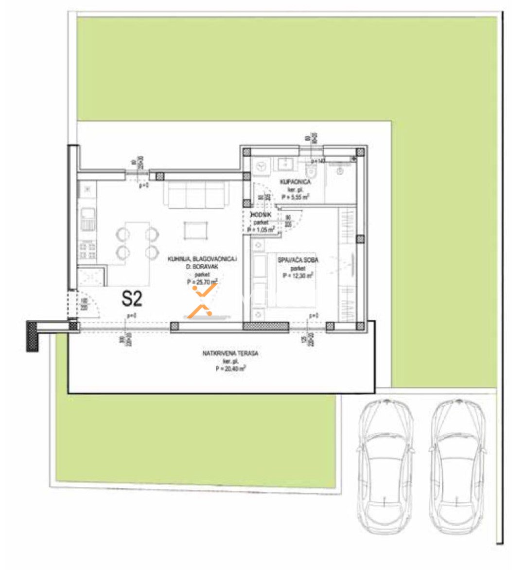
Die Raumaufteilung umfasst einen Flur, ein Schlafzimmer, ein Badezimmer, eine offene Küche mit Essbereich und Wohnzimmer sowie eine überdachte und eine nicht überdachte Terrasse. Die Nettonutzfläche der Innenräume beträgt 58,60 m2. Darüber hinaus gehören ein großzügiger privater Garten mit 82 m2, ein Abstellraum mit 6,15 m2 im Untergeschoss sowie zwei Außenstellplätze zur Wohnung. Die gesamte Nettonutzfläche inklusive Nebenflächen beträgt 75,38 m2.
Das Gebäude wurde im Jahr 2026 fertiggestellt und verfügt über einen Energieausweis A, was die hohe Bauqualität und Energieeffizienz bestätigt.
Der Käufer zahlt keine Immobilienerwerbssteuer, wodurch diese Immobilie besonders attraktiv als Kapitalanlage ist.
Die Wohnung verfügt über eine elektrische Fußbodenheizung in allen Räumen, während zwei schwarze Designer-Klimageräte von Mitsubishi für ein angenehmes Raumklima sorgen. Die Küche mit Bosch-Geräten ist im Preis inbegriffen, ebenso ein Esstisch mit vier Stühlen sowie zwei Außentische mit Stühlen für sechs Personen.
Das Gebäude wurde mit Ziegel-Thermoblock errichtet und besitzt eine 10 cm starke Styropor-Fassadendämmung. PVC-Fenster mit Dreifachverglasung, elektrischen Rollläden und Insektenschutzgittern bieten zusätzlichen Wärme- und Schallschutz. Die Eingangstür ist einbruchhemmend und feuerbeständig, während das Flachdach aus Beton die moderne Architektursprache unterstreicht.
Die Böden sind in allen Wohnräumen mit Parkett ausgestattet, das Badezimmer ist gefliest. Die Terrasse ist mit Naturstein ausgeführt und mit einer ausziehbaren Kassettenmarkise versehen. Zur weiteren Ausstattung gehören eine Waschmaschine, Hansgrohe-Armaturen sowie ein Wasseranschluss im Garten.
Sukošan ist ein charmantes dalmatinisches Küstenstädtchen in der weitläufigen Bucht Zlatna Luka, nur 7 km von Zadar entfernt. Mit rund 3.000 Einwohnern sowie den umliegenden Orten Debeljak, Glavica und Gorica bietet es eine ruhige mediterrane Atmosphäre in Kombination mit hervorragender Verkehrsanbindung. Die wichtigste Attraktion ist die D-Marin Dalmacija, die größte Marina an der Adria, die Sukošan zu einem wahren Paradies für Segler und Meeresliebhaber macht.
Besonders attraktiv sind die vielfältigen Strände wie der beliebte Kinderparadies-Strand, der ruhigere Podvare-Strand oder der Kiesstrand Makarska, ebenso wie kleine, versteckte Buchten, die es zu entdecken gilt. Baden, Segeln und Spaziergänge entlang der Küste werden durch ein abwechslungsreiches Kultur- und Gesellschaftsleben ergänzt. Im Sommer erwarten Sie Fischerfeste, Konzerte, Folkloreabende und das Fest des hl. Kasijan mit Feuerwerk. Sportbegeisterte genießen den Schwimmmarathon, lokale Turniere oder die bekannte Regatta „Tanz mit den Segeln“.
Dank unberührter Natur, erstklassiger nautischer Infrastruktur und zahlreicher Veranstaltungen zählt Sukošan zu den begehrtesten Orten für den Kauf von Immobilien an der Adria – sei es als ruhiges Zuhause am Meer oder als attraktive Investition mit hohem Vermietungspotenzial.
Sukošan gilt als begehrter Ort für den Immobilienkauf am Meer.
Entdecken Sie Immobilien zum Verkauf in Zadar und Umgebung.
Im selben Gebäude stehen ebenfalls folgende Wohnungen zum Verkauf: A1586, A1588, A1589, A1590 und A1591.
Falls Sie diese Immobilie woanders zu einem günstigeren Preis gesehen haben, gilt der gleiche Preis auch bei uns!
Link zu häufig gestellten Fragen
