Falls Sie diese Immobilie woanders zu einem günstigeren Preis gesehen haben, gilt der gleiche Preis auch bei uns!
Link zu häufig gestellten Fragen
Es wird nicht die genaue Adresse der Immobilie angezeigt
Besichtigung über VIDEO ANRUF
RUFEN SIE UNS AN +385 23 300 000

Zum Verkauf steht eine Erdgeschosswohnung in zweiter Reihe zum Meer in Sveti Filip i Jakov, nur 60 m vom Meer entfernt.
Die Immobilie bietet eine großzügige und funktionale Raumaufteilung und eignet sich ideal für Familien oder als Feriendomizil am Meer.
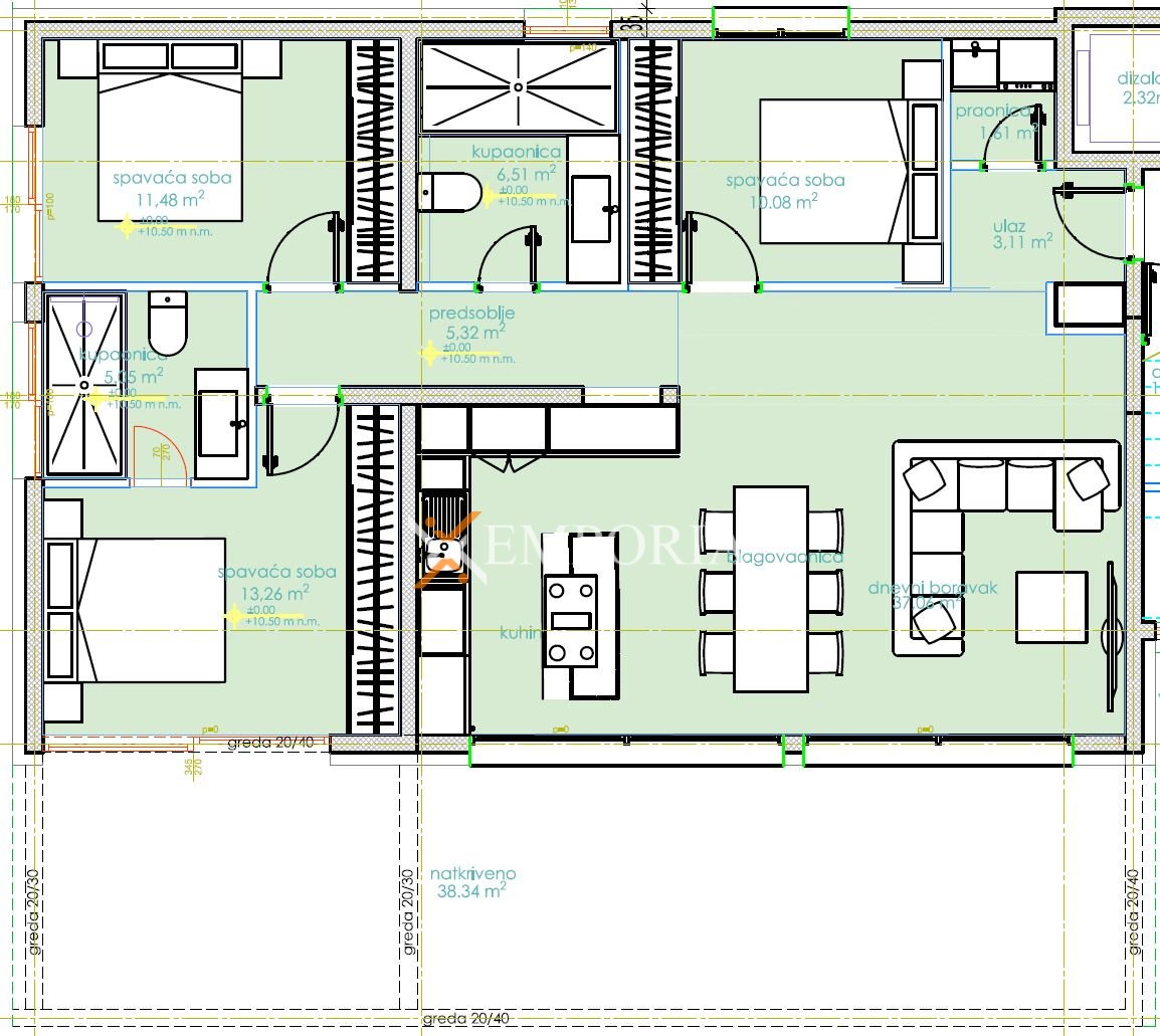
Die Netto-Wohnfläche beträgt 112,65 m², während die Gesamtfläche inklusive Nebenflächen 129,65 m² ausmacht.
Der Grundriss umfasst einen Flur, zwei Schlafzimmer, ein Schlafzimmer mit eigenem Badezimmer, ein weiteres Badezimmer, einen Hauswirtschaftsraum, eine Küche mit Ess- und Wohnbereich sowie eine überdachte Terrasse.
Zur Wohnung gehört zudem ein Garten mit einer Fläche von ca. 120 m² mit Swimmingpool, sowie zwei Stellplätze.
Die Immobilie wurde aus Ziegel-Thermoblockmauerwerk errichtet und verfügt über Aluminiumfenster mit Dreifachverglasung, elektrischen Rollläden und Insektenschutz sowie eine 10 cm starke Styroporfassade. Die Böden bestehen aus Fliesen und Parkett, die Eingangstür ist einbruch- und feuerhemmend, und die Entwässerung ist an die öffentliche Kanalisation angeschlossen. Das Gebäude verfügt über ein neues, flaches Betondach.
In den Badezimmern ist elektrische Fußbodenheizung installiert, und vier Klimaanlagen sind im Wohnzimmer und in den Schlafzimmern eingebaut, wodurch ganzjährig angenehme Temperaturen gewährleistet sind.
Der Käufer zahlt keine Immobilienerwerbssteuer, was dieses Angebot besonders attraktiv macht.
Die geplante Fertigstellung ist 2027, der erwartete Energieausweis ist A.
Diese Wohnung stellt eine hochwertige Immobilie in ausgezeichneter Meeresnähe dar und eignet sich ideal zum ruhigen Wohnen, für Familien oder als wertbeständige Investition an der Küste.
Der kleine malerische Ort von Sveti Filip i Jakov liegt an der Küste des Pasman-Meeres, zwischen Zadar und Biograd. Sv. Filip i Jakov ist ein Ort, der für seine ehemaligen Herrenhäuser bekannt ist, die den heutigen Ferienhäusern und einem gut entwickelten Tourismus vorausgingen. Sv. Filip i Jakov ist berühmt für seine schönen Kies- und Sandstrände. Ebenso erstreckt sich entlang der Länge des Strandes eine schöne Promenade, die Küste von Sv. Filip i Jakov – Turanj verbindet.
Dieser kleine Ort bietet Ihnen alles, was Sie für den Alltag und für einen idealen Urlaub benötigen. Zahlreiche Restaurants, Cafés und Geschäfte machen Ihren Aufenthalt hier noch entspannter. Sveti Filip i Jakov ist sozusagen mit der Stadt Biograd verbunden, wo viele weitere Inhalte angeboten werden, und in der unmittelbaren Nähe befindet sich auch der Fun Park Mirnovec.
Sveti Filip i Jakov ist ein attraktives Ziel für den Kauf von Immobilien am Meer , ideal sowohl für den Urlaub als auch für das ganzjährige Wohnen.
Entdecken Sie unser vollständiges Angebot an Immobilien zum Verkauf .
In diesem Gebäude stehen außerdem folgende Apartments zum Verkauf: A1550, A1551 und A1552.
Falls Sie diese Immobilie woanders zu einem günstigeren Preis gesehen haben, gilt der gleiche Preis auch bei uns!
Link zu häufig gestellten Fragen
