Falls Sie diese Immobilie woanders zu einem günstigeren Preis gesehen haben, gilt der gleiche Preis auch bei uns!
Link zu häufig gestellten Fragen
Es wird nicht die genaue Adresse der Immobilie angezeigt
Besichtigung über VIDEO ANRUF
RUFEN SIE UNS AN +385 23 300 000

Zum Verkauf steht ein Neubau, gelegen in Sabunike bei Privlaka, in ruhiger Lage nur 450 m vom Meer entfernt, mit Meerblick vom ersten Stock und von der Dachterrasse. Die Immobilie eignet sich sowohl für das Familienwohnen als auch als Ferienhaus am Meer.
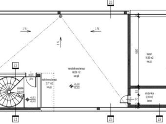
Das Haus besteht aus einer Wohneinheit und erstreckt sich über Erdgeschoss, Obergeschoss und Dachterrasse. Die Gesamtfläche beträgt 305,31 m², einschließlich des auf der Dachterrasse befindlichen Pools, während die Grundstücksfläche 350 m² beträgt.
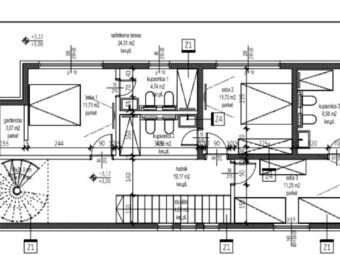
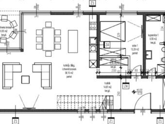
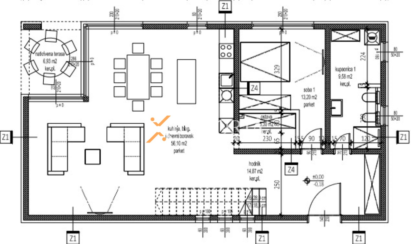
Im Erdgeschoss befinden sich ein Flur, ein Wohnzimmer mit Küche und Essbereich, ein Zimmer, ein Badezimmer, ein Abstellraum sowie eine überdachte Terrasse. Das Obergeschoss verfügt über drei Schlafzimmer, jeweils mit eigenem Badezimmer, eine Ankleide sowie eine überdachte Terrasse. Die Dachterrasse bietet überdachte und nicht überdachte Bereiche, einen Swimmingpool mit einer Fläche von 16,80 m² mit Heizoption sowie einen Technikraum.
Zur Immobilie gehören ein Garten sowie zwei Parkplätze. Der Abstellraum im Erdgeschoss hat eine Fläche von 3,30 m² und erhöht die Funktionalität des Hauses.
Das Haus wurde aus Ziegel-Thermoblockmauerwerk errichtet und ist mit PVC-Fenstern (Dreifachverglasung, elektrische Rollläden, Insektenschutz) sowie einer 10 cm starken Styroporfassade ausgestattet. Die Böden sind mit Fliesen belegt, und die Entwässerung ist an die öffentliche Kanalisation angeschlossen.
Im gesamten Haus ist elektrische Fußbodenheizung installiert, zusätzlich sind fünf Klimaanlagen im Wohnzimmer und in den Schlafzimmern eingebaut, die ganzjährig für angenehme Temperaturen sorgen.
Die geplante Fertigstellung ist 2026, der erwartete Energieausweis ist A.
Diese Neubauimmobilie stellt eine hochwertige und funktionale Immobilie mit zusätzlichen Ausstattungsmerkmalen wie Pool und Dachterrasse dar und befindet sich in der Nähe des Meeres sowie aller wichtigen Einrichtungen.
Sabunike ist ein kleiner touristischer Ort, ideal für einen wahrhaften und entspannungsvollen Familienurlaub. Sabunike liegt neben der Königstadt Nin und nördlich von dem Fischerort Privlaka. Aus dem Ort ist ein traumhafter Blick zum Meer, dem Velebit – Gebirge und der Stadt Nin gegeben. Hervorzuheben sind die wunderschönen und zahlreichen Sandstrände in der Umgebung, wo auch zusätzliche interessante Inhalte zu finden sind.
Sabunike ist ein attraktives Ziel für den Kauf von Immobilien am Meer , ideal sowohl für den Urlaub als auch für das ganzjährige Wohnen.
Entdecken Sie unser gesamtes Angebot an Immobilien zum Verkauf .
Falls Sie diese Immobilie woanders zu einem günstigeren Preis gesehen haben, gilt der gleiche Preis auch bei uns!
Link zu häufig gestellten Fragen
