Falls Sie diese Immobilie woanders zu einem günstigeren Preis gesehen haben, gilt der gleiche Preis auch bei uns!
Link zu häufig gestellten Fragen
Es wird nicht die genaue Adresse der Immobilie angezeigt
Besichtigung über VIDEO ANRUF
RUFEN SIE UNS AN +385 23 300 000

Zum Verkauf steht ein Neubau, der westliche Teil eines Doppelhauses, gelegen in Sabunike bei Privlaka, nur 450 m vom Meer entfernt.
Die Immobilie bietet Meerblick vom ersten Stock sowie von der Dachterrasse, was sie besonders attraktiv für Wohn- oder Ferienzwecke macht.
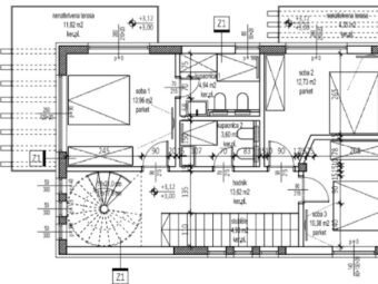
Das Haus besteht aus einer Wohneinheit und erstreckt sich über Erdgeschoss, Obergeschoss und Dachterrasse.
Die Gesamtfläche des Gebäudes beträgt 153,16 m², während die Gesamtfläche inklusive Nebenflächen 168,66 m² ausmacht. Die Grundstücksfläche beträgt 272 m².
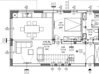
Im Erdgeschoss befinden sich ein Wohnzimmer mit Küche und Essbereich, ein Schlafzimmer sowie ein Badezimmer.
Das Obergeschoss umfasst zwei Schlafzimmer, ein Badezimmer sowie ein Schlafzimmer mit eigenem Bad, außerdem zwei nicht überdachte Terrassen.
Auf der Dachterrasse gibt es einen überdachten und einen nicht überdachten Bereich sowie einen Swimmingpool mit Technikraum.
Der Swimmingpool mit einer Fläche von 13,95 m² ist keramisch ausgeführt und verfügt über eine Heizoption. Zur Immobilie gehören zwei Parkplätze.
Das Haus wurde aus Ziegel-Thermoblockmauerwerk errichtet und ist mit PVC-Fenstern mit Dreifachverglasung, elektrischen Rollläden und Insektenschutz ausgestattet. Die Styroporfassade ist 10 cm stark. Die Böden sind mit Fliesen belegt, und die Entwässerung ist an die öffentliche Kanalisation angeschlossen.
Im gesamten Haus ist elektrische Fußbodenheizung installiert, zusätzlich sind fünf Klimaanlagen im Wohnzimmer und in den Schlafzimmern eingebaut, die ganzjährig für angenehme Temperaturen sorgen.
Die geplante Fertigstellung ist 2026, der erwartete Energieausweis ist A.
Diese Neubauimmobilie bietet eine hochwertige Bauweise in ruhiger Lage nahe dem Meer und eignet sich ideal für Familien oder als Ferienhaus mit Pool und Dachterrasse.
Sabunike ist ein kleiner touristischer Ort, ideal für einen wahrhaften und entspannungsvollen Familienurlaub. Sabunike liegt neben der Königstadt Nin und nördlich von dem Fischerort Privlaka. Aus dem Ort ist ein traumhafter Blick zum Meer, dem Velebit – Gebirge und der Stadt Nin gegeben. Hervorzuheben sind die wunderschönen und zahlreichen Sandstrände in der Umgebung, wo auch zusätzliche interessante Inhalte zu finden sind.
Sabunike ist ein attraktives Ziel für den Kauf von Immobilien am Meer , ideal sowohl für den Urlaub als auch für das ganzjährige Wohnen.
Entdecken Sie unser gesamtes Angebot an Immobilien zum Verkauf .
Falls Sie diese Immobilie woanders zu einem günstigeren Preis gesehen haben, gilt der gleiche Preis auch bei uns!
Link zu häufig gestellten Fragen
