Falls Sie diese Immobilie woanders zu einem günstigeren Preis gesehen haben, gilt der gleiche Preis auch bei uns!
Link zu häufig gestellten Fragen
Es wird nicht die genaue Adresse der Immobilie angezeigt
Besichtigung über VIDEO ANRUF
RUFEN SIE UNS AN +385 23 300 000

Zum Verkauf steht eine Doppelhaushälfte mit Pool in Poličnik. Es handelt sich um einen modernen Neubau.
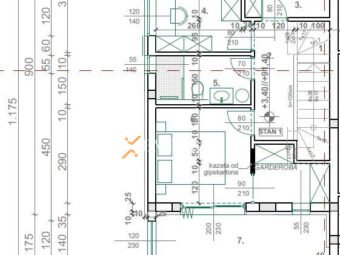
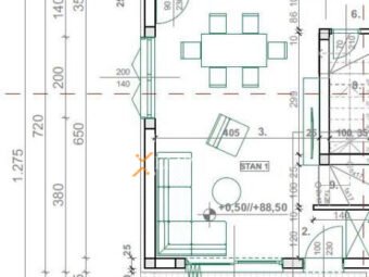
Das Haus besteht aus Erdgeschoss und Obergeschoss. Die Raumaufteilung im Erdgeschoss besteht aus einem Eingang, einem Abstellraum, einer Toilette, einer Küche mit Esszimmer und Wohnzimmer sowie zwei überdachten Terrassen. Eine Innentreppe führt in den ersten Stock, wo sich ein Flur, ein Badezimmer, zwei Schlafzimmer, ein Schlafzimmer mit Garderobe und eine Loggia befinden. Die Fläche der oben genannten beträgt 95,24 m2.
Zusätzlich verfügt das Haus über einem Schwimmbad von 15 m2, einen Garten und einen Außenparkplatz.
Die Gesamtfläche des Hauses mit allen zusätzlichen Teilen beträgt 104,99 m2.
Die Entfernung dieser Immobilie zum Meer beträgt 9 km. Die Entfernung zum Zentrum von Poličnik beträgt 750 m.
Der Bau des Hauses erfolgt mit gemauerten Thermoblöcken. Die Wärmedämmung der Fassade besteht aus 8 cm Styropor.
Die Bodenbeläge sind Fliesen und Laminat/Parkett. Die Fenster bestehen aus PVC-Material mit Rollläden und Moskitonetzen. Zum Heizen und Kühlen der Räume werden vier Klimaanlagen installiert. Zusätzlich wird im Badezimmer eine Fußbodenheizung installiert.
Energieausweis A wird erwartet.
Voraussichtlicher Fertigstellungstermin: Sommer 2026.
Poličnik ist ein kleines Dorf in der Region Zadar in Kroatien. Dieser malerische Ort liegt in der Nähe der Stadt Zadar und zeichnet sich durch seine wunderschöne Natur, ruhige Atmosphäre und den traditionellen dalmatinischen Charme aus. Es ist ein optimaler Ort, um sich zu entspannen und dem hektischen Stadtleben zu entfliehen.
Was wir momentan noch im Angebot in der Gemeinde Poličnik haben können Sie unter diesem Link sehen.
Falls Sie diese Immobilie woanders zu einem günstigeren Preis gesehen haben, gilt der gleiche Preis auch bei uns!
Link zu häufig gestellten Fragen
