Falls Sie diese Immobilie woanders zu einem günstigeren Preis gesehen haben, gilt der gleiche Preis auch bei uns!
Link zu häufig gestellten Fragen
Es wird nicht die genaue Adresse der Immobilie angezeigt
Besichtigung über VIDEO ANRUF
RUFEN SIE UNS AN +385 23 300 000

Zum Verkauf steht eine Neubauwohnung in Privlaka, nur 100 m vom Meer und 1,1 km vom Ortszentrum entfernt. Die Immobilie befindet sich in attraktiver Lage und bietet einen schönen Meerblick, wodurch sich ihr Wert und ihr Investitionspotenzial zusätzlich erhöhen.
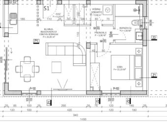
Die Wohnung befindet sich im Erdgeschoss eines modernen Gebäudes. Der Grundriss umfasst einen Flur, ein Schlafzimmer, ein Badezimmer, einen Hauswirtschaftsraum, eine Küche mit Essbereich und Wohnzimmer sowie eine überdachte Terrasse. Die Netto-Nutzfläche der beschriebenen Räume beträgt 55,48 m2. Zusätzlich gehören zur Wohnung ein Garten mit 65 m2 sowie zwei Stellplätze. Die gesamte Nettofläche inklusive aller zugehörigen Teile beträgt 67,18 m2.
Diese Immobilie stellt eine hervorragende Gelegenheit dar, eine moderne Wohnung in Meeresnähe zu erwerben, sei es zur Eigennutzung, zum ganzjährigen Wohnen oder als Kapitalanlage für die touristische Vermietung.
Die Wohnung verfügt über eine elektrische Fußbodenheizung im gesamten Objekt. Zusätzlich sind zwei Klimaanlagen installiert, eine im Wohnzimmer und eine im Schlafzimmer. Das Gebäude wurde mit Thermoziegeln errichtet, die Fassade ist mit 10 cm Styropor gedämmt, was die Energieeffizienz deutlich erhöht.
Die PVC-Fenster sind dreifach verglast. Große Glasflächen sind mit elektrischen Rollläden ausgestattet, die übrigen Fenster verfügen über Rollläden und Insektenschutzgitter. Die Böden sind mit Fliesen und Laminat versehen. Die Eingangstür ist einbruchhemmend und feuerbeständig. Das Dach ist neu, flach und aus Beton.
Das Baujahr ist 2026, der erwartete Energieausweis ist Klasse A, wodurch diese Neubauimmobilie eine moderne und energieeffiziente Investition in gefragter Lage von Privlaka darstellt.
Privlaka ist ein kleiner touristischer Ort, nur 15 Minuten Autofahrt von der Stadt Zadar entfernt. Privlaka hat Ihren idyllischen Platz zwischen der Königstadt Nin und der Insel Vir auf einer Halbinsel aus Sand gefunden. Das saubere, Crystal blaue Meer, lange paradiesische Buchten und Strände sind für Erholung und Entspannung geschaffen. Dieser Ort bietet alles an, was Sie für einen angenehmen Alltag brauchen: Geschäfte, Restaurants, Post, Ambulanz, Apotheke, Cafés. Genauso wiederum finden sie in Privlaka auch alles, was für einen perfekten Familienurlaub im mediterranen Stil nötig ist.
Entdecken Sie, warum Privlaka ein attraktiver Standort für den Immobilienkauf ist.
Sehen Sie sich unser vollständiges Angebot an Immobilien zum Verkauf an.
Im selben Gebäude bieten wir außerdem folgende Wohnungen zum Verkauf an: A1577, A1578, A1579, A1580 und A1581.
Falls Sie diese Immobilie woanders zu einem günstigeren Preis gesehen haben, gilt der gleiche Preis auch bei uns!
Link zu häufig gestellten Fragen
