Falls Sie diese Immobilie woanders zu einem günstigeren Preis gesehen haben, gilt der gleiche Preis auch bei uns!
Link zu häufig gestellten Fragen
Es wird nicht die genaue Adresse der Immobilie angezeigt
Besichtigung über VIDEO ANRUF
RUFEN SIE UNS AN +385 23 300 000

Wohnung zum Verkauf im Erdgeschoss eines Wohngebäudes in Ražanac. Die Entfernung dieser Immobilie zum Meer beträgt nur 80 m. Die Wohnung bietet einen sehr schönen Blick auf das Meer. Das Gebäude befindet sich derzeit im Bau und soll im Herbst 2025 fertiggestellt werden.
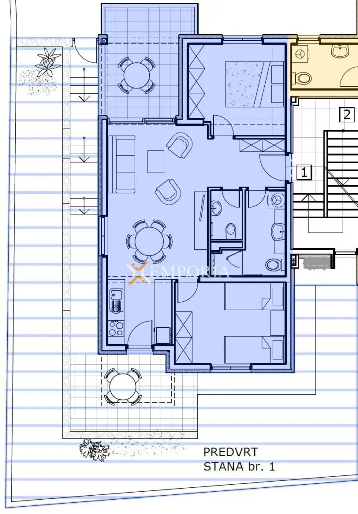
Die Raumaufteilung besteht aus einem Flur, 2 Schlafzimmern, einem Badezimmer, einer Toilette, einer Küche mit Esszimmer und einem Wohnzimmer, einer Loggia und einer teilweise überdachten Terrasse. Die Nettonutzfläche der beschriebenen Räume der Wohnung und der Terrasse beträgt 67,95 m2. Darüber hinaus verfügt die Wohnung über eine Tiefgarage von 24,67 m2 und einen Garten von 85,78 m2.
Die gesamte Nettonutzfläche der Wohnung mit den zugehörigen Teilen beträgt 91,33 m2.
Im Gebäude befinden sich insgesamt 4 Wohnungen. Die Entfernung zum Stadtzentrum beträgt nur 400 m.
Die Bodenbeläge sind Fliesen und Parkett. Die Fassade verfügt über eine 10 cm dicke Wollwärmedämmung. Die Fenster sind aus PVC-Material mit Rollläden, Moskitonetzen und dreischichtigem Glas. Das Wohnzimmer und die Schlafzimmer sind klimatisiert, zusätzlich verfügt die Wohnung über einen Kaminanschluss. Im Badezimmer ist eine Fußbodenheizung installiert. Die Eingangstür ist einbruchhemmend und feuerbeständig.
Für diese Immobilie wird ein Energieausweis A erwartet.
Ražanac ist ein kleiner Ort auf der südlichen Seite des Velebit-Kanals, der eine weite Bandbreite an alltäglichen Inhalten für einen angenehmen Urlaub verfügt wie Restaurants, Bars, Apotheke, Post, Geschäfte, Camping usw. Ražanac ist ca. 20 km von Zadar und etwa 50 km von dem beliebten Strand Zrće auf der Insel Pag entfernt.
Entdecken Sie, warum Ražanac ein attraktiver Standort für Immobilieninvestitionen ist.
Sehen Sie sich unser vollständiges Angebot an Immobilien zum Verkauf an.
Im selben Gebäude sind auch folgende Apartments zum Verkauf: A1199, A1200, und A1582.
Falls Sie diese Immobilie woanders zu einem günstigeren Preis gesehen haben, gilt der gleiche Preis auch bei uns!
Link zu häufig gestellten Fragen
