Falls Sie diese Immobilie woanders zu einem günstigeren Preis gesehen haben, gilt der gleiche Preis auch bei uns!
Link zu häufig gestellten Fragen
Es wird nicht die genaue Adresse der Immobilie angezeigt
Besichtigung über VIDEO ANRUF
RUFEN SIE UNS AN +385 23 300 000

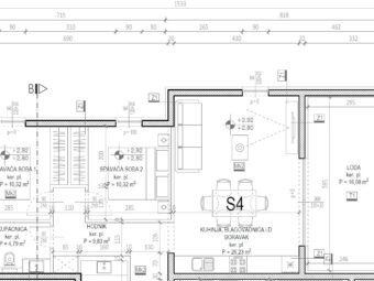
Wohnung in Zadar, Bili Brig, Neubau, Meerblick, Gesamtnettofläche 85,83 m2, im 1. Stock gelegen, ideal für modernes Wohnen in attraktiver Küstenlage.
Die Wohnung besteht aus Flur, zwei Schlafzimmern, Hauswirtschaftsraum/WC, Badezimmer, offener Küche mit Essbereich und Wohnzimmer sowie einer Loggia. Die Nettonutzfläche der geschlossenen Räume beträgt 77,13 m2. Zusätzlich gehören zwei Parkplätze und ein Kellerabstellraum zur Wohnung, sodass die gesamte Nettonutzfläche mit Zubehör 85,83 m2 beträgt.
Die Wohnung bietet einen schönen Meerblick. Die Bauqualität ist hoch, mit Betonwänden und 10 cm Styroporfassade. Das Baujahr ist 2027, und der erwartete Energieausweis ist A, was die hohe Energieeffizienz bestätigt.
Die Wohnung verfügt über elektrische Fußbodenheizung im gesamten Wohnbereich, drei Klimaanlagen im Wohnzimmer und in den Schlafzimmern, Aluminiumfenster mit elektrischen Rollläden und Insektenschutzgittern. Die Böden sind mit hochwertigen Fliesen ausgelegt. Die Eingangstür ist einbruch- und feuerbeständig, und das Dach ist neu, flach und aus Beton, was Sicherheit und Langlebigkeit gewährleistet.
Bili Brig ist eins der größten Stadtviertel In Zadar. Dort ist alles zu finden was für einen entspannten Alltag nötig ist: Schule, Kindergarten, Geschäfte, Kosmetik und Frisörsalons, Post, Bank, Cafes und Pizzerias. In der Nähe ist auch das Sport und Rekreationszentrum Višnjik. Bili Brig ist vom Stadtzentrum, der Halbinsel, Meer und Strand nur einige Minuten mit Auto entfernt. Das Stadtviertel ist ausgezeichnet durch gute Buslinien mit anderen Stadtteilen verbunden.
Entdecken Sie, warum Zadar ein attraktiver Standort für den Immobilienkauf ist.
Sehen Sie sich unser komplettes Angebot an Immobilien zum Verkauf an.
Im selben Gebäude haben wir auch Wohnungen zum Verkauf: F1345, F1346, F1347.
Falls Sie diese Immobilie woanders zu einem günstigeren Preis gesehen haben, gilt der gleiche Preis auch bei uns!
Link zu häufig gestellten Fragen
