Falls Sie diese Immobilie woanders zu einem günstigeren Preis gesehen haben, gilt der gleiche Preis auch bei uns!
Link zu häufig gestellten Fragen
Es wird nicht die genaue Adresse der Immobilie angezeigt
Besichtigung über VIDEO ANRUF
RUFEN SIE UNS AN +385 23 300 000

Zum Verkauf steht eine moderne Neubauwohnung in einem ruhigen Teil von Zadar, im Stadtteil Crvene kuće, nur 1,3 km vom Meer und 2,8 km vom Stadtzentrum entfernt. Diese Immobilie bietet eine ideale Kombination aus Funktionalität, hochwertiger Bauweise und angenehmem Wohnkomfort.
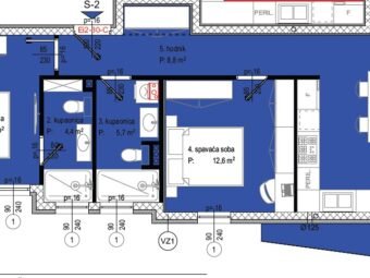
Die Wohnung befindet sich im Erdgeschoss des Gebäudes und verfügt über eine Nettofläche von 84,08 m². Die Raumaufteilung umfasst einen Flur, eine Küche mit Ess- und Wohnzimmer, ein Schlafzimmer, ein weiteres Schlafzimmer mit eigenem Badezimmer, ein zusätzliches Badezimmer sowie eine Terrasse.
Zur Wohnung gehören außerdem ein Garten von 95,76 m² und zwei Außenparkplätze, was den Komfort und den Wert der Immobilie zusätzlich erhöht. Die gesamte Nettofläche mit Zubehör beträgt 99,19 m².
Diese Wohnung überzeugt durch hohe Bauqualität und moderne technische Lösungen. In der Küche, im Esszimmer, im Wohnzimmer und in den Bädern ist elektrische Fußbodenheizung installiert. Zusätzlich sorgen drei Klimaanlagen (im Wohnzimmer und in den Schlafzimmern) für angenehme Temperaturen das ganze Jahr über.
Das Gebäude besteht aus Betonwänden und verfügt über eine 10 cm starke Styroporfassade, die hervorragende Wärmedämmung bietet. Die Fenster sind aus PVC mit Dreifachverglasung, mit elektrischen Rollläden und Insektenschutzgittern ausgestattet.
Die Böden sind mit Fliesen belegt, und die Eingangstür ist einbruchs- und feuerbeständig. Das Objekt ist an die Kanalisation angeschlossen, und das flache Betondach sorgt für Stabilität und Langlebigkeit.
Die Fertigstellung des Gebäudes ist für 2026 geplant, und das erwartete Energiezertifikat ist A+, was eine hohe Energieeffizienz und niedrige Betriebskosten garantiert.
Crvene kuće ist ein ruhiges Stadtviertel im nördlichen Teil von Zadar, das hauptsächlich aus Einfamilienhäusern und einer Reihe von neuen Wohngebäuden besteht. Es ist weit genug von Hektik entfernt, und trotzdem dauert es nur etwa 10 Minuten Autofahrt, um das Stadtzentrum und genauso viel um den nächstgelegenen Strand zu erreichen. Deshalb ist dieser Stadtteil zum Wohnen wünschenswert.
Mehr Informationen über den Ort finden Sie unter dem Link Zadar.
Alle derzeit verfügbaren Wohnungen in Zadar finden Sie hier.
Das Gebäude besteht aus insgesamt 6 Wohnungen. Noch verfügbar sind: F1286, F1288, F1289, F1290, F1291.
Falls Sie diese Immobilie woanders zu einem günstigeren Preis gesehen haben, gilt der gleiche Preis auch bei uns!
Link zu häufig gestellten Fragen
