Falls Sie diese Immobilie woanders zu einem günstigeren Preis gesehen haben, gilt der gleiche Preis auch bei uns!
Link zu häufig gestellten Fragen
Es wird nicht die genaue Adresse der Immobilie angezeigt
Besichtigung über VIDEO ANRUF
RUFEN SIE UNS AN +385 23 300 000

Eine tolle Penthouse-Wohnung in einem Neubau steht zum Verkauf. Diese Wohnung befindet sich in Diklo, Zadar, nur 50 m vom Meer entfernt.
Es handelt sich um ein modernes Wohngebäude mit einem Aufzug. Die Fertigstellung wird bis Sommer 2025 erwartet.
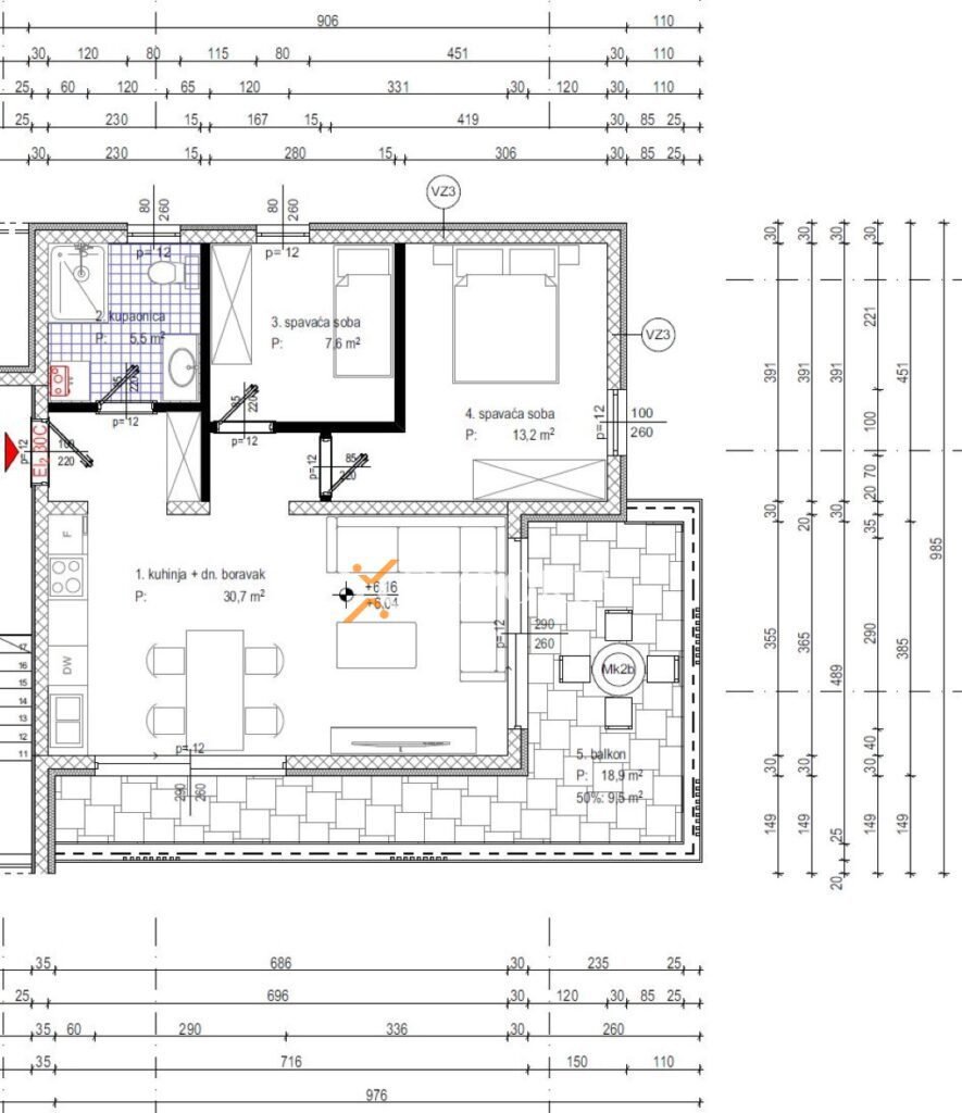
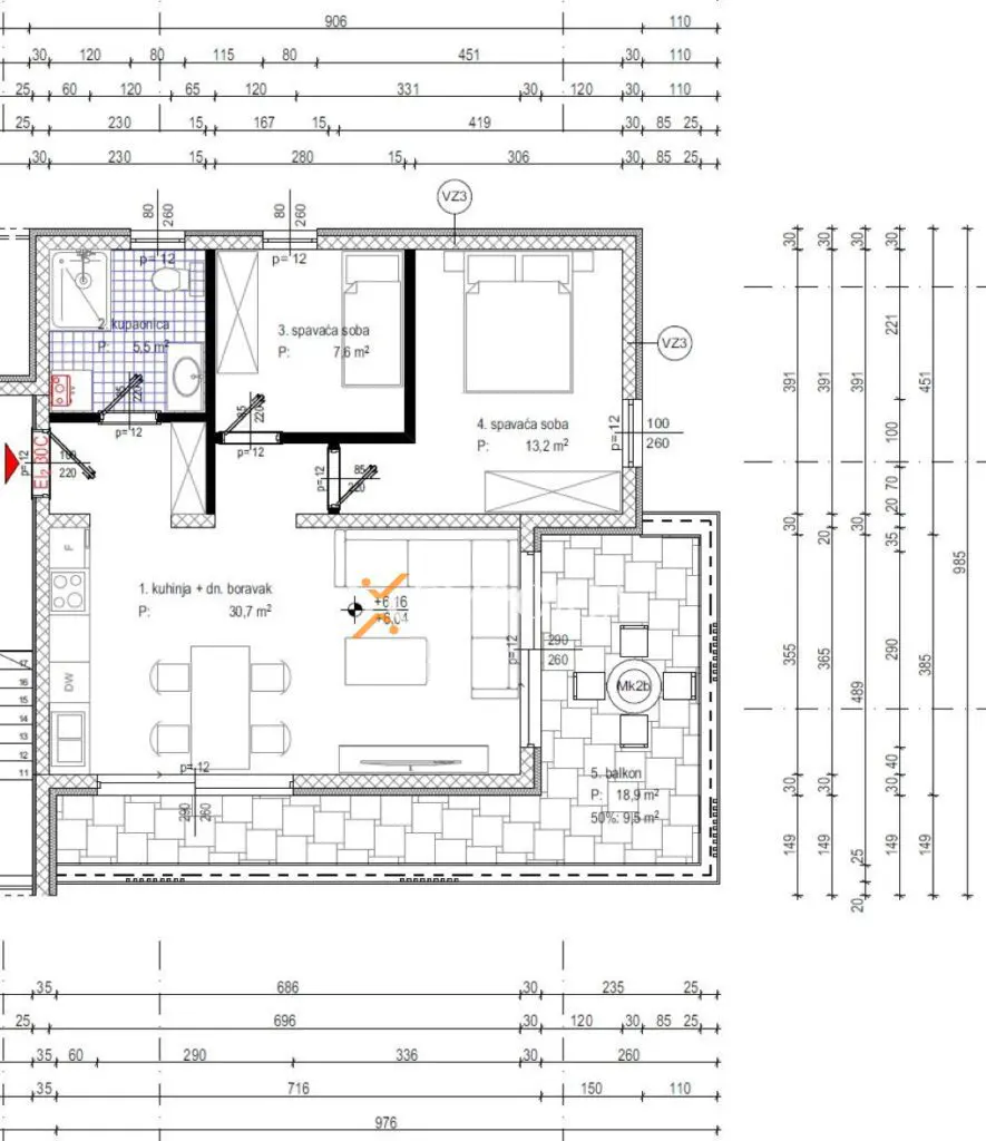
Diese Wohnung befindet sich im zweiten Stock des Gebäudes. Die Raumaufteilung besteht aus 2 Schlafzimmern, einem Badezimmer, einer Küche mit Essbereich und Wohnzimmer sowie einer überdachten Terrasse. Vom Treppenhaus gelangt man auf die Dachterrasse mit einer Fläche von 81,00 m2. Die Nettonutzfläche der beschriebenen Räumlichkeiten beträgt 86,05 m2.
Zusätzlich gehört zur Wohnung ein Abstellraum im Keller und zwei Außenstellplätze. Die Gesamtnettofläche der Wohnung mit allen zusätzlichen Teilen beträgt 94,20 m2.
Die Entfernung zum Stadtzentrum beträgt 4,7 km.
Wir betonen, dass diese Wohnungen von der Firma verkauft werden und der Käufer keine Immobilienerwerbssteuer zahlen muss.
Der Bau erfolgt mit Betonwänden. Die Wärmedämmung der Fassade erfolgt mit Styropor 10 cm. Bei den Bodenbelägen handelt es sich um Fliesen. Die Fenster sind PVC mit Aluminiumglaswänden, elektrischen Rollläden, Fliegengittern und Dreifachverglasung. In Schlafzimmer und Wohnzimmer sind Klimaanlagen installiert.
Die Wohnung ist mit einer Fußbodenheizung in allen Räumen ausgestattet. Die Eingangstür der Wohnung ist einbruch- und feuerfest.
Das Gebäude verfügt über ein Energiezertifikat der Klasse B.
Diklo ist ein Stadtviertel von Zadar, das sich am Meer befindet, bekannt für Villas und Ferienobjekte. Es ist eins der schönsten Stadtviertel von Zadar, ausgezeichnet zum Leben, aber auch zum Urlaub machen. In der Umgebung befinden sich schöne Strände, Sportinhalte, zahlreiche Restaurants und Cafés. Diklo ist auch gut durch den öffentlichen Verkehr verbunden.
Unser komplettes Immobilienangebot im Stadteil Diklo in Zadar sehen sie hier.
Falls Sie diese Immobilie woanders zu einem günstigeren Preis gesehen haben, gilt der gleiche Preis auch bei uns!
Link zu häufig gestellten Fragen
