Falls Sie diese Immobilie woanders zu einem günstigeren Preis gesehen haben, gilt der gleiche Preis auch bei uns!
Link zu häufig gestellten Fragen
Es wird nicht die genaue Adresse der Immobilie angezeigt
Besichtigung über VIDEO ANRUF
RUFEN SIE UNS AN +385 23 300 000

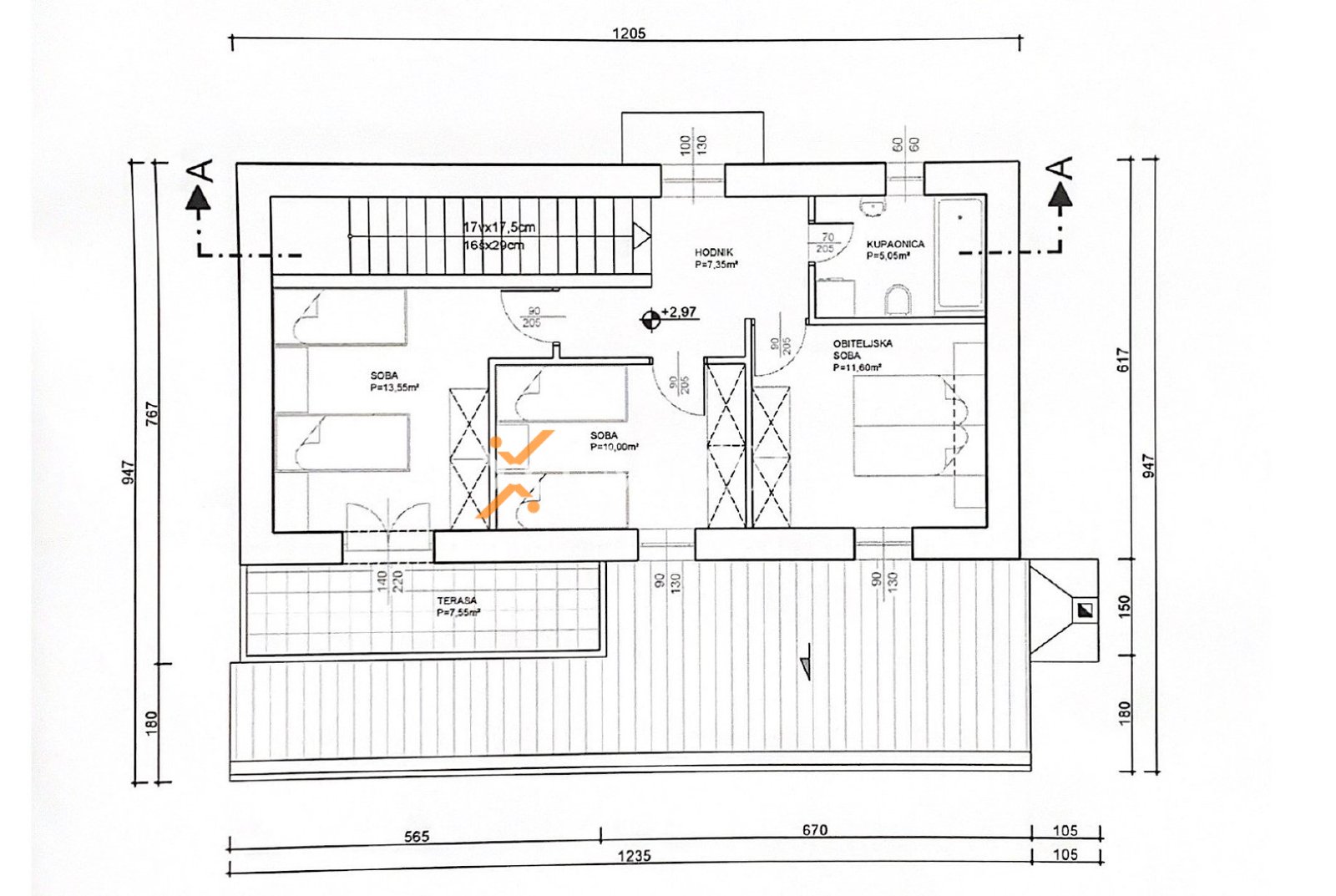
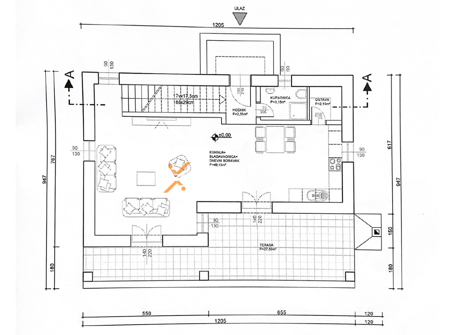
Ein schönes Haus mit Pool steht in Radovin, einem ruhigen Ort in der Gemeinde Ražanac, zum Verkauf. Es liegt 4,8 km vom Meer und 1,3 km vom Ortszentrum entfernt. Das Haus besteht aus Erdgeschoss und Obergeschoss, bietet eine funktionale Raumaufteilung und 146,40 m² Wohnfläche, während die Gesamtgrundstücksfläche 669 m² beträgt.
Es ist komplett möbliert und bereit zur Nutzung sowie zur touristischen Vermietung.
Das Erdgeschoss umfasst einen Flur, eine Küche mit Essbereich und Wohnraum, ein Badezimmer, einen Abstellraum, sowie eine Terrasse und bietet insgesamt 91,30 m² Fläche. Im Obergeschoss befinden sich ein Flur, drei Schlafzimmer, ein Badezimmer und eine weitere Terrasse mit insgesamt 55,10 m². Im Außenbereich stehen ein 32 m² großer Pool, ein großzügiger Garten und ein Grill zur Verfügung. Außerdem sind vier Parkplätze vorhanden.
Das Haus wurde in Ziegel-Thermoblockbauweise errichtet und ist mit Aluminiumfenstern samt Fensterläden, Insektenschutzgittern und Doppelverglasung ausgestattet. Im Erdgeschoss wurden Fliesen verlegt, während in den Schlafzimmern im Obergeschoss Laminatböden für Wohnkomfort sorgen. Die Fassade verfügt über eine 7 cm starke Wärmedämmung.
Ein Schornstein ist vorhanden und im Wohnzimmer schafft ein Kamin eine besonders angenehme Atmosphäre. Die Vorbereitung für eine Zentralheizung ist bereits abgeschlossen, und die Klimatisierung erfolgt über vier Einheiten – im Wohnzimmer sowie in allen drei Schlafzimmern.
Das Haus wurde im Jahr 2023 renoviert und verfügt über ein Energiezertifikat der Klasse A.
Radovin ist eine kleine Ortschaft in der Gemeinde Ražanac, ideal für entspannende ruhige Ferien, in der Nähe von vielen attraktiven Destinationen, nur 5 km vom Meer entfernt, 20 km von Zadar und zahlreichen anderen touristischen Zentren mit großem Angebot an Inhalten.
Erfahren Sie, warum Radovin nahe Ražanac eine ausgezeichnete Wahl für den Kauf von Immobilien ist.
Entdecken Sie unser vollständiges Angebot an Häusern, Wohnungen, Appartements und Grundstücken zum Verkauf .
Falls Sie diese Immobilie woanders zu einem günstigeren Preis gesehen haben, gilt der gleiche Preis auch bei uns!
Link zu häufig gestellten Fragen
