Falls Sie diese Immobilie woanders zu einem günstigeren Preis gesehen haben, gilt der gleiche Preis auch bei uns!
Link zu häufig gestellten Fragen
Es wird nicht die genaue Adresse der Immobilie angezeigt
Besichtigung über VIDEO ANRUF
RUFEN SIE UNS AN +385 23 300 000

Zum Verkauf steht ein äußerst schönes Haus in Kožino, nur wenige Kilometer von der Stadt Zadar entfernt. Es befindet sich lediglich 115 m vom Meer und einem schönen Strand, und vom ersten Stock aus bietet sich ein herrlicher Meerblick.
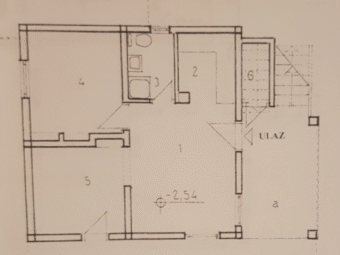
Das Haus besteht aus drei Wohneinheiten, jede mit separatem Eingang. Im Erdgeschoss und im ersten Stock befindet sich jeweils eine Drei-Zimmer-Wohnung, und im Erdgeschoss, jedoch auf einer anderen Ebene, liegt ein Studio-Apartment.
Die gesamte Wohnfläche der Einheiten beträgt 160,28 m². Zusätzlich gehören zwei Abstellräume zum Haus – einer unter der Treppe (1,9 m²) und einer im Hof (3,05 m²). Das Haus wurde auf einem 246 m² großen Grundstück errichtet.
Im Hof stehen zwei Parkplätze zur Verfügung.
Die Übergabe des Hauses ist ab dem 15. September 2026 möglich.
Dank der hervorragenden Lage und der funktionalen Raumaufteilung stellt diese Immobilie eine sehr gute Investition für die touristische Vermietung dar.
Das Haus ist äußerst gepflegt und wurde regelmäßig instandgehalten. Im Preis inbegriffen sind alle vorhandenen Möbel, die Ausstattung und Geräte (ohne persönliche Gegenstände).
Die Bauausführung erfolgte mit hochwertigen Ziegel-Thermoblocks, und alle Fenster bestehen aus PVC und verfügen über Insektenschutzgitter.
Heizung:
– Erdgeschoss: elektrische Konvektoren in den Schlafzimmern, ein Ölheizkörper im Wohnzimmer, Elektroheizkörper im Badezimmer
– erster Stock: Holzofen im Wohnzimmer, elektrische Konvektoren im Wohnzimmer und in den Schlafzimmern, Elektroheizkörper im Badezimmer
– Studio-Apartment: Elektroheizkörper
Für die Kühlung stehen zwei mobile Klimageräte zur Verfügung.
Die Bodenbeläge bestehen aus Parkett und Fliesen. Alle Badezimmer wurden im Jahr 2020 komplett renoviert, einschließlich neuer Strom- und Wasserinstallationen. Im Studio-Apartment und in der Wohnung im ersten Stock wurden zu diesem Zeitpunkt neue Holztüren eingebaut.
Kožino ist eine Ortschaft, die zur Stadt Zadar gehört, gelegen ca. 7 km nordwestlich von derselben. Es hat etwas mehr als 800 Einwohner. Kožino schmücken viele Villen und Ferienhäuser. Die schöne Lage an der Küste mit zahlreichen Stränden, wobei es gleichzeitig so nahe zur Stadt und all ihren Annehmlichkeiten liegt, sind Gründe wieso Kožino so attraktiv ist. Geschäfte, Restaurants, Cafés und eine Apotheke finden Sie in unmittelbarer Umgebung. Kožino ist ein begehrtes Touristenziel, weil es eine wahre Oase der Ruhe in der wunderschönen mediterranen Umgebung ist.
Falls Sie diese Immobilie woanders zu einem günstigeren Preis gesehen haben, gilt der gleiche Preis auch bei uns!
Link zu häufig gestellten Fragen
