Falls Sie diese Immobilie woanders zu einem günstigeren Preis gesehen haben, gilt der gleiche Preis auch bei uns!
Link zu häufig gestellten Fragen
Es wird nicht die genaue Adresse der Immobilie angezeigt
Besichtigung über VIDEO ANRUF
RUFEN SIE UNS AN +385 23 300 000

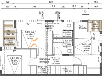
Zum Verkauf steht ein modernes Neubauhaus mit Swimmingpool in Zaton bei Nin, nur 280 m vom Meer und 760 m vom Ortszentrum entfernt. Die Immobilie erstreckt sich über zwei Etagen und verfügt über eine Wohnfläche von insgesamt 119,23 m², während die Gesamtfläche mit Garten 124,13 m² beträgt. Ein privater Pool sowie die ruhige Lage in unmittelbarer Nähe aller Annehmlichkeiten verleihen diesem Haus besonderen Wert.
Das Erdgeschoss umfasst eine großzügige Küche, die mit dem Essbereich und dem Wohnzimmer verbunden ist, ein Badezimmer, einen Waschraum und eine nicht überdachte Terrasse. Eine Innentreppe führt in das Obergeschoss, wo sich ein Flur, zwei Schlafzimmer, ein weiteres Schlafzimmer mit eigenem Bad, ein zusätzliches Badezimmer sowie zwei überdachte Terrassen befinden, die zusätzlichen Komfort bieten.
Das Haus wurde hochwertig gebaut und mit modernen Lösungen ausgestattet. Elektrische Fußbodenheizung ist im Wohnzimmer und in den Bädern installiert, während vier Klimaanlagen im Wohnzimmer und in allen Schlafzimmern für angenehmes Raumklima sorgen. Die Wände bestehen aus Ziegel-Thermoblock, die Fassade verfügt über eine 10 cm Isolierung und die PVC-Fenster mit Dreifachverglasung sind mit elektrischen Rollläden ausgestattet. Die Böden sind mit Fliesen und Laminat ausgelegt, eine Sicherheitstür sowie ein Schornstein sind vorhanden. Das Flachdach besteht aus Beton. Zur Immobilie gehören zudem drei Stellplätze.
Diese Immobilie wird komplett möbliert verkauft.
Zaton ist eine kleine Touristische Ortschaft, ideal für einen wahrhaften Urlaub und Entspannung von dem alltäglichen Stress. Zaton liegt zwischen den zwei historischen Städten, Nin (2 km) und Zadar (12 km). Der Ort stellt eine einmalige Kombination der dalmatinischen Architektur, des angenehmen mediterranen Klimas, erhaltener Naturschönheit, reicher kultureller und historischer Erbschaft, vermischt mit dem lebhaften touristischen Alltag, da. Die Sandstrände mit Schatten, gegeben von den hundert Jahre alten Pinien, sind ideal für Familien mit Kindern. Wenn Sie Ruhe, Kristall blaues Meer, und unvergessliche Sonnenuntergänge suchen ist Zaton der ideale Urlaubsort für sie.
Mehr über den Ort Zaton finden Sie unter dem Link Zaton.
Unser komplettes Immobilienangebot in Nin finden Sie hier.
Falls Sie diese Immobilie woanders zu einem günstigeren Preis gesehen haben, gilt der gleiche Preis auch bei uns!
Link zu häufig gestellten Fragen
