Falls Sie diese Immobilie woanders zu einem günstigeren Preis gesehen haben, gilt der gleiche Preis auch bei uns!
Link zu häufig gestellten Fragen
Es wird nicht die genaue Adresse der Immobilie angezeigt
Besichtigung über VIDEO ANRUF
RUFEN SIE UNS AN +385 23 300 000

Zum Verkauf steht ein attraktives Baugrundstück mit 829 m², nur 200 m vom Ortszentrum und lediglich 8 km vom Meer entfernt. Für das Grundstück wurde bereits eine Baugenehmigung erteilt. Der Zugang erfolgt über einen öffentlichen Schotterweg. Es besteht die Möglichkeit einer stufenweisen Bebauung in zwei Bauabschnitten. Das Grundstück befindet sich in ruhiger Lage und ist nach Süden ausgerichtet.
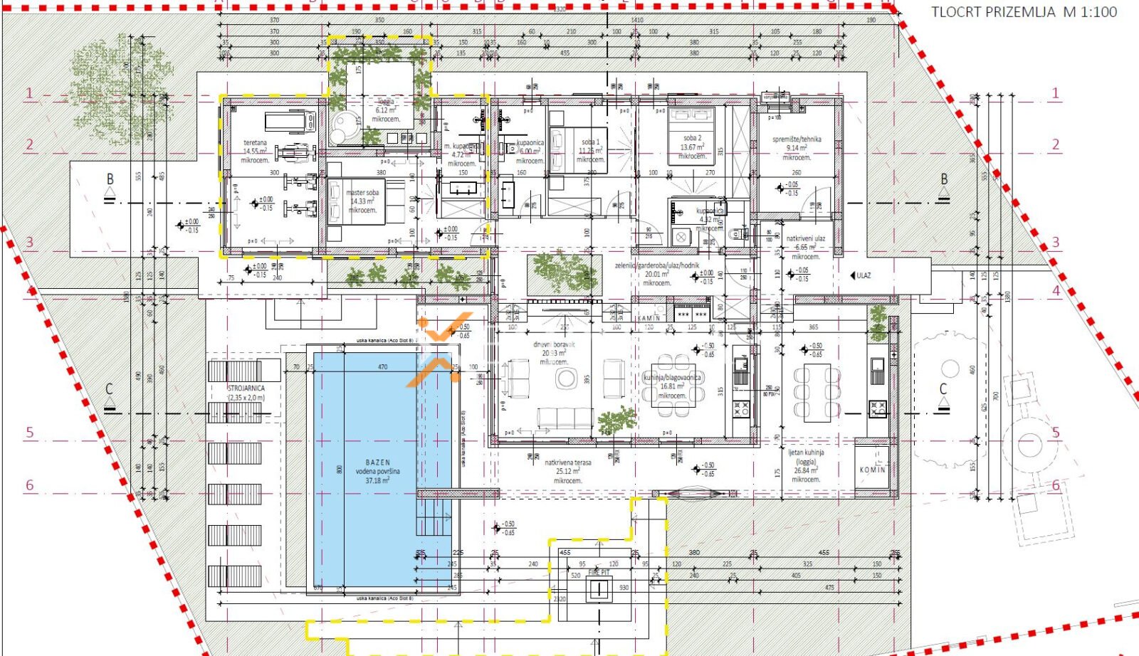
Für dieses Grundstück liegen eine gültige Baugenehmigung sowie ein genehmigtes Hauptprojekt vor. Die Genehmigung sieht den Bau eines Hauses mit einer Netto-Nutzfläche von 168,65 m² vor, das in zwei Phasen errichtet wird. In der ersten Phase entstehen der Eingangsbereich, ein Außenspeicher, zwei Schlafzimmer, zwei Badezimmer, eine Küche und ein Wohnzimmer. Zudem werden eine Außenterrasse mit Sommerküche sowie ein Pool mit den Maßen 8×4,70 m (37,18 m²) samt Technikraum gebaut. Nach Abschluss der ersten Bauphase ist das Haus voll nutzbar. In der zweiten Phase sind die Erweiterung um ein Hauptschlafzimmer mit eigenem Bad, ein Fitnessraum sowie die Gestaltung einer offenen Feuerstelle (Fire Pit) vorgesehen.
Die Kommunal- und Wasseranschlussbeiträge sind noch nicht entrichtet; der Eigentümer übernimmt deren Zahlung im Falle eines Verkaufs. Strom befindet sich in etwa 100 m Entfernung, Wasseranschluss in ca. 150 m an der Hauptstraße.
Diese Immobilie stellt eine hervorragende Investitionsmöglichkeit dar und ist ideal für den Bau eines Ferienhauses oder eines dauerhaften Wohnsitzes, dank der Nähe zum Meer und der bereits vorbereiteten Projektdokumentation.
Škabrnja liegt in der fruchtbaren Ebene der Ravni Kotari, nur 15 km von Zadar entfernt. Bekannt für seine Weinberge, Olivenhaine und reiche landwirtschaftliche Tradition, bietet es ein echtes Erlebnis des dalmatinischen Hinterlandes. Der Ort strahlt Ruhe und Authentizität aus, mit einem starken Sinn für Familienleben und Gemeinschaft. Die Nähe zu Zadar, zur Autobahn und zur Küste macht ihn zu einem hervorragend angebundenen Standort, während die reine Natur und unberührte Landschaften ein ideales Umfeld für alle bieten, die ein ruhiges Zuhause oder eine Investition im Herzen Dalmatiens suchen.
Falls Sie diese Immobilie woanders zu einem günstigeren Preis gesehen haben, gilt der gleiche Preis auch bei uns!
Link zu häufig gestellten Fragen
