Falls Sie diese Immobilie woanders zu einem günstigeren Preis gesehen haben, gilt der gleiche Preis auch bei uns!
Link zu häufig gestellten Fragen
Es wird nicht die genaue Adresse der Immobilie angezeigt
Besichtigung über VIDEO ANRUF
RUFEN SIE UNS AN +385 23 300 000

Zum Verkauf steht eine moderne Neubauwohnung in Sukošan mit schönem Meerblick. Die Immobilie befindet sich im ersten Stock eines hochwertig gebauten Wohngebäudes, nur 40 m vom Meer entfernt, während das Ortszentrum 1,8 km entfernt liegt.
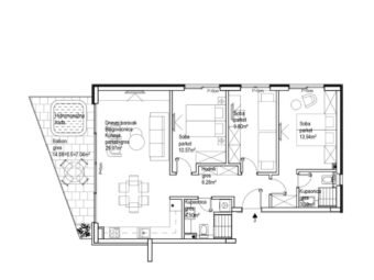
Die Wohnung verfügt über eine funktionale Raumaufteilung bestehend aus einem Eingangsbereich, zwei Schlafzimmern, einem Schlafzimmer mit eigenem Badezimmer, einem weiteren Badezimmer sowie einer Küche mit Essbereich und offenem Wohnraum. Vom Wohnbereich aus gelangt man auf eine überdachte Terrasse, die sich ideal für entspannte Stunden im Freien eignet. Die Nettonutzfläche der beschriebenen Räume beträgt 85,46 m², während die gesamte Nettofläche inklusive Zubehör 88,01 m² umfasst. Zur Wohnung gehört ein Parkplatz.
Die Badezimmer sind mit elektrischer Fußbodenheizung ausgestattet, während im Wohnbereich und in allen Schlafzimmern Klimageräte installiert sind, insgesamt vier Einheiten. Das Gebäude ist aus Stahlbeton und Ziegel-Thermoblock gebaut, während die Fassade mit 10 cm Steinwolle gedämmt ist. Eingebaut sind PVC-Fenster mit Dreifachverglasung, elektrischen Rollläden und Insektenschutzgittern. Die Böden sind mit Fliesen belegt, die Eingangstür ist einbruchhemmend und feuerfest. Das Dach ist neu, flach und aus Stahlbeton gefertigt.
Die Fertigstellung ist für das Jahr 2027 geplant, und der erwartete Energieausweis entspricht der Klasse A, was diese Immobilie sowohl für den Eigenbedarf als auch als sichere Investition besonders attraktiv macht.
Sukošan ist ein charmantes dalmatinisches Küstenstädtchen in der weitläufigen Bucht Zlatna Luka, nur 7 km von Zadar entfernt. Mit rund 3.000 Einwohnern sowie den umliegenden Orten Debeljak, Glavica und Gorica bietet es eine ruhige mediterrane Atmosphäre in Kombination mit hervorragender Verkehrsanbindung. Die wichtigste Attraktion ist die D-Marin Dalmacija, die größte Marina an der Adria, die Sukošan zu einem wahren Paradies für Segler und Meeresliebhaber macht.
Besonders attraktiv sind die vielfältigen Strände wie der beliebte Kinderparadies-Strand, der ruhigere Podvare-Strand oder der Kiesstrand Makarska, ebenso wie kleine, versteckte Buchten, die es zu entdecken gilt. Baden, Segeln und Spaziergänge entlang der Küste werden durch ein abwechslungsreiches Kultur- und Gesellschaftsleben ergänzt. Im Sommer erwarten Sie Fischerfeste, Konzerte, Folkloreabende und das Fest des hl. Kasijan mit Feuerwerk. Sportbegeisterte genießen den Schwimmmarathon, lokale Turniere oder die bekannte Regatta „Tanz mit den Segeln“.
Dank unberührter Natur, erstklassiger nautischer Infrastruktur und zahlreicher Veranstaltungen zählt Sukošan zu den begehrtesten Orten für den Kauf von Immobilien an der Adria – sei es als ruhiges Zuhause am Meer oder als attraktive Investition mit hohem Vermietungspotenzial.
Sukošan gilt als begehrter Ort für den Immobilienkauf am Meer.
Falls Sie diese Immobilie woanders zu einem günstigeren Preis gesehen haben, gilt der gleiche Preis auch bei uns!
Link zu häufig gestellten Fragen
