Falls Sie diese Immobilie woanders zu einem günstigeren Preis gesehen haben, gilt der gleiche Preis auch bei uns!
Link zu häufig gestellten Fragen
Es wird nicht die genaue Adresse der Immobilie angezeigt
Besichtigung über VIDEO ANRUF
RUFEN SIE UNS AN +385 23 300 000

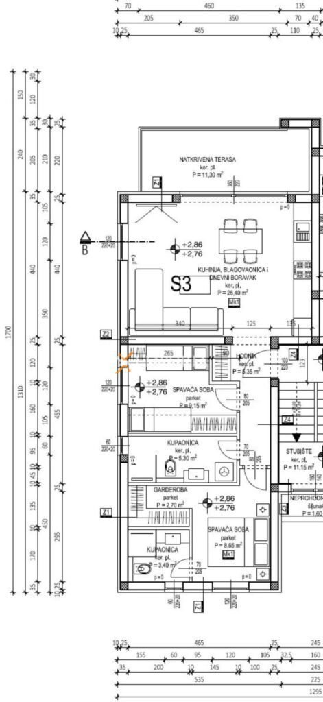
Zum Verkauf steht eine modern gestaltete Wohnung in einem ruhigen Teil von Rovanjska, nur 120 m vom Meer und 800 m vom Ortszentrum entfernt. Dank der hervorragenden Lage und dem wunderschönen Meerblick eignet sich diese Immobilie ideal zum Wohnen oder als Investition in den Tourismus.
Die Wohnung besteht aus einem Flur, zwei Schlafzimmern – eines davon mit eigenem Bad und Ankleide – einem weiteren Badezimmer sowie einer Küche mit Ess- und Wohnzimmer, von dem aus man auf eine überdachte Terrasse gelangt. Die Netto-Wohnfläche beträgt 66,60 m², die gesamte Nettofläche mit Nebenflächen beträgt 69,35 m². Ein Parkplatz ist im Preis inbegriffen.
Die Badezimmer verfügen über elektrische Fußbodenheizung, und es sind drei Klimaanlagen installiert – im Wohnzimmer und in beiden Schlafzimmern. Das Gebäude wird aus Ziegel-Thermoblock gebaut. Die PVC-Fenster verfügen über Dreifachverglasung, elektrische Rollläden und Insektenschutzgitter. Die Fassade ist mit 10 cm Styropor isoliert, und die Böden sind mit hochwertigen Fliesen belegt. Die Eingangstür ist einbruch- und feuerhemmend, das Dach ist neu, flach und aus Beton.
Die Fertigstellung ist für 2026 geplant. Es wird eine Energieeffizienzklasse A erwartet.
Rovanjska befindet sich in einer Bucht, wo sich das kontinentale und Meeresklima mischen, am Ende des Velebit Kanals. Es ist ideal für ein entspanntes Leben und einen entspannten Urlaub. Die Lage ist perfekt, da man zu Rovanjska direkt von der Autobahn kommen kann, der Ort ist nur 25 Minuten Autofahrt von der Stadt Zadar entfernt, 10 Minuten von Starigrad – Paklenica und 250 km von der kroatischen Hauptstadt Zagreb. Rovanjska ist eine touristische Oase geworden die Ruhe und einen angenehmen Urlaub im dalmatinischen Ambiente anbietet.
Mehr über den Ort finden Sie unter dem Link Rovanjska.
Unser komplettes Angebot von Immobilien in Jasenice finden Sie hier.
In demselben Gebäude sind außerdem folgende Wohnungen verfügbar: A1517, A1518, A1520, A1521, A1522.
Falls Sie diese Immobilie woanders zu einem günstigeren Preis gesehen haben, gilt der gleiche Preis auch bei uns!
Link zu häufig gestellten Fragen
