Falls Sie diese Immobilie woanders zu einem günstigeren Preis gesehen haben, gilt der gleiche Preis auch bei uns!
Link zu häufig gestellten Fragen
Es wird nicht die genaue Adresse der Immobilie angezeigt
Besichtigung über VIDEO ANRUF
RUFEN SIE UNS AN +385 23 300 000

Zum Verkauf steht eine Penthouse Wohnung in Privlaka, nur 150 Meter vom Meer entfernt. Es handelt sich um einen modernen Neubau.
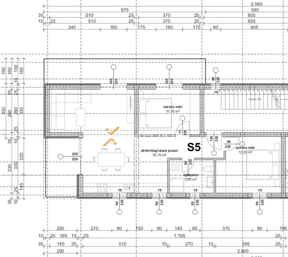
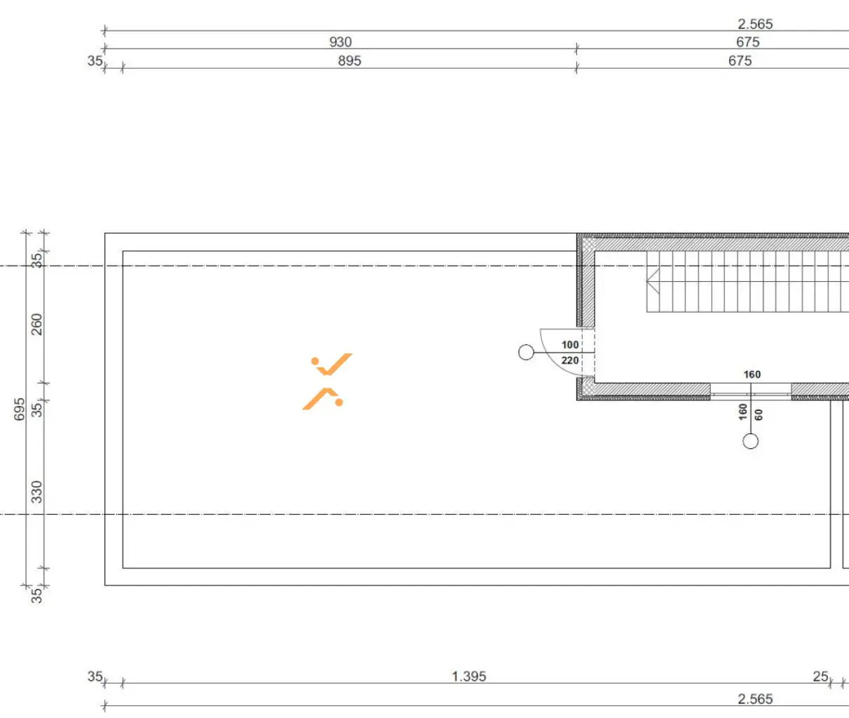
Die Wohnung befindet sich im 2. Stock des Gebäudes. Die Raumaufteilung besteht aus einem Flur, einem Badezimmer, einem Wohnzimmer mit Küche und Essbereich, zwei Schlafzimmern und einer überdachten Terrasse (netto 67,39 m2). Vom Treppenhaus aus gelangt man auf die Dachterrasse mit einer Fläche von 72,44 m2. Die Gesamtnettofläche der beschriebenen Räumlichkeiten beträgt 85,50 m2.
Zusätzlich zur Wohnung gehören zwei Parkplätze vor dem Gebäude.
Die gesamte Nettofläche der Wohnung mit allen zusätzlichen Teilen beträgt 90,50 m2.
Die Entfernung dieser Immobilie vom Zentrum von Privlaka beträgt 1,8 km.
Das Gebäude befindet sich im Bau, und die Fertigstellung ist für den Sommer 2025 geplant.
Das Gebäude wird mit Thermoblockziegeln gebaut. Die Wärmedämmung der Fassade besteht aus 8 cm Styropor. Die Fenster bestehen aus PVC-Material mit Dreifachverglasung, Rollläden und Moskitonetzen. Die Bodenbeläge sind Laminat und Fliesen. Die gesamte Wohnung wird mit einer elektrischen Fußbodenheizung ausgestattet sein. Zusätzlich werden im Wohnzimmer und in den Schlafzimmern Klimaanlagen installiert. Weiters ist die Eingangstür der Wohnung einbruch- und feuersicher.
Ein Energiezertifikat A wird erwartet.
Privlaka ist ein kleiner touristischer Ort, nur 15 Minuten Autofahrt von der Stadt Zadar entfernt. Privlaka hat Ihren idyllischen Platz zwischen der Königstadt Nin und der Insel Vir auf einer Halbinsel aus Sand gefunden. Das saubere, Crystal blaue Meer, lange paradiesische Buchten und Strände sind für Erholung und Entspannung geschaffen. Dieser Ort bietet alles an, was Sie für einen angenehmen Alltag brauchen: Geschäfte, Restaurants, Post, Ambulanz, Apotheke, Cafés. Genauso wiederum finden sie in Privlaka auch alles, was für einen perfekten Familienurlaub im mediterranen Stil nötig ist.
Mehr über den Ort finden Sie unter dem Link Privlaka.
Das Gebäude besteht aus insgesamt 6 Wohnungen. Folgende sind noch verfügbar: A1466, A1467, A1468, A1470.
Falls Sie diese Immobilie woanders zu einem günstigeren Preis gesehen haben, gilt der gleiche Preis auch bei uns!
Link zu häufig gestellten Fragen
