Falls Sie diese Immobilie woanders zu einem günstigeren Preis gesehen haben, gilt der gleiche Preis auch bei uns!
Link zu häufig gestellten Fragen
Es wird nicht die genaue Adresse der Immobilie angezeigt
Besichtigung über VIDEO ANRUF
RUFEN SIE UNS AN +385 23 300 000

Zum Verkauf steht ein Penthouse im Stadtteil Borik in Zadar, etwa 490 m vom Meer und 2,9 km vom Stadtzentrum entfernt.
Die Wohnung befindet sich im zweiten Stock des Gebäudes und zeichnet sich durch eine funktionale Raumaufteilung, hochwertige Bauweise und einen ausgezeichneten Meerblick aus.
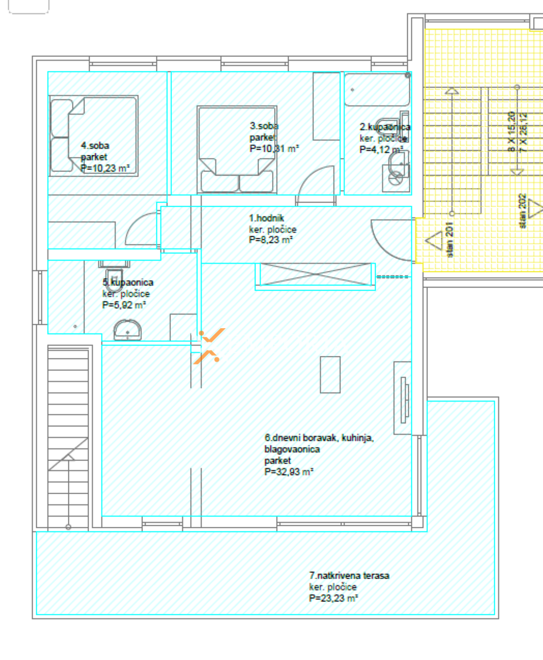
Die Netto-Wohnfläche beträgt 109,98 m², während die Gesamtfläche einschließlich der Nebenflächen 116,79 m² ausmacht.
Der Grundriss umfasst einen Flur, ein Schlafzimmer, ein Schlafzimmer mit eigenem Badezimmer, ein weiteres Badezimmer, eine Küche, die mit dem Ess- und Wohnbereich verbunden ist, sowie eine überdachte Terrasse von 75,12 m².
Von der Terrasse führen Stufen zur großzügigen Dachterrasse von 102,99 m², auf der sich ein Jacuzzi befindet.
Zur Wohnung gehören außerdem ein Abstellraum von 3,50 m² im Erdgeschoss sowie zwei Parkplätze.
Die Immobilie wurde aus Ziegel-Thermoblockmauerwerk gebaut und verfügt über PVC-Fenster mit Dreifachverglasung, elektrischen Rollläden und Insektenschutz sowie über eine 10 cm starke Styroporfassade.
Die Böden bestehen aus Fliesen und Laminat, und die Eingangstür ist einbruch- und feuerhemmend.
In allen Räumen außer den Schlafzimmern ist elektrische Fußbodenheizung installiert, und es gibt drei Klimaanlagen – eine im Wohnzimmer und je eine in den Schlafzimmern.
Das Gebäude wurde 2022 errichtet und besitzt einen Energieausweis der Klasse B.
Die Wohnung wird voll möbliert verkauft.
Dieses Penthouse ist eine sehr attraktive Immobilie im Stadtteil Borik in Zadar und ideal für alle, die eine hochwertige Wohnung mit großem Außenbereich und Meerblick suchen.
Der Stadtteil Borik ist für seine Sand- und Kieselstrände bekannt, die meist mit zusätzlichen Inhalten für Sport, Spaß und Rekreation ausgestattet sind. Auch mehrere Sportterrains sind in diesem Stadtviertel zu finden.
Borik ist eine Destination, die aufgrund schöner und leicht zugänglicher Strände oft Familien mit kleinen Kindern empfohlen wird. Die große Auswahl von Sportinhalten im Ort, die Nähe zum Stadtzentrum und zur Altstadt von Zadar, machen Borik interessant für junge Leute und Menschen, die gerne einen aktiven Urlaub verbringen. Dort sind sehr gute Restaurants, Cafés, Nightclubs und Parks für Kinder zu finden. Dieses Stadtviertel ist aber auch sehr gut durch regelmäßige Buslinien mit anderen Teilen der Stadt verbunden.
Mehr über den Ort finden Sie unter dem Link Zadar.
Unser komplettes Angebot von Immobilien in Zadar finden Sie hier.
Falls Sie diese Immobilie woanders zu einem günstigeren Preis gesehen haben, gilt der gleiche Preis auch bei uns!
Link zu häufig gestellten Fragen
