Falls Sie diese Immobilie woanders zu einem günstigeren Preis gesehen haben, gilt der gleiche Preis auch bei uns!
Link zu häufig gestellten Fragen
Es wird nicht die genaue Adresse der Immobilie angezeigt
Besichtigung über VIDEO ANRUF
RUFEN SIE UNS AN +385 23 300 000

Zum Verkauf steht ein modernes Penthouse im zweiten Stock eines Neubaus im ruhigen Stadtteil Crvene Kuće in Zadar. Das Gebäude befindet sich nur 1,26 km vom Meer und 2,8 km vom Stadtzentrum entfernt. Diese Immobilie bietet eine perfekte Kombination aus Luxus, Funktionalität und hochwertiger Bauweise – ideal für modernes Wohnen.
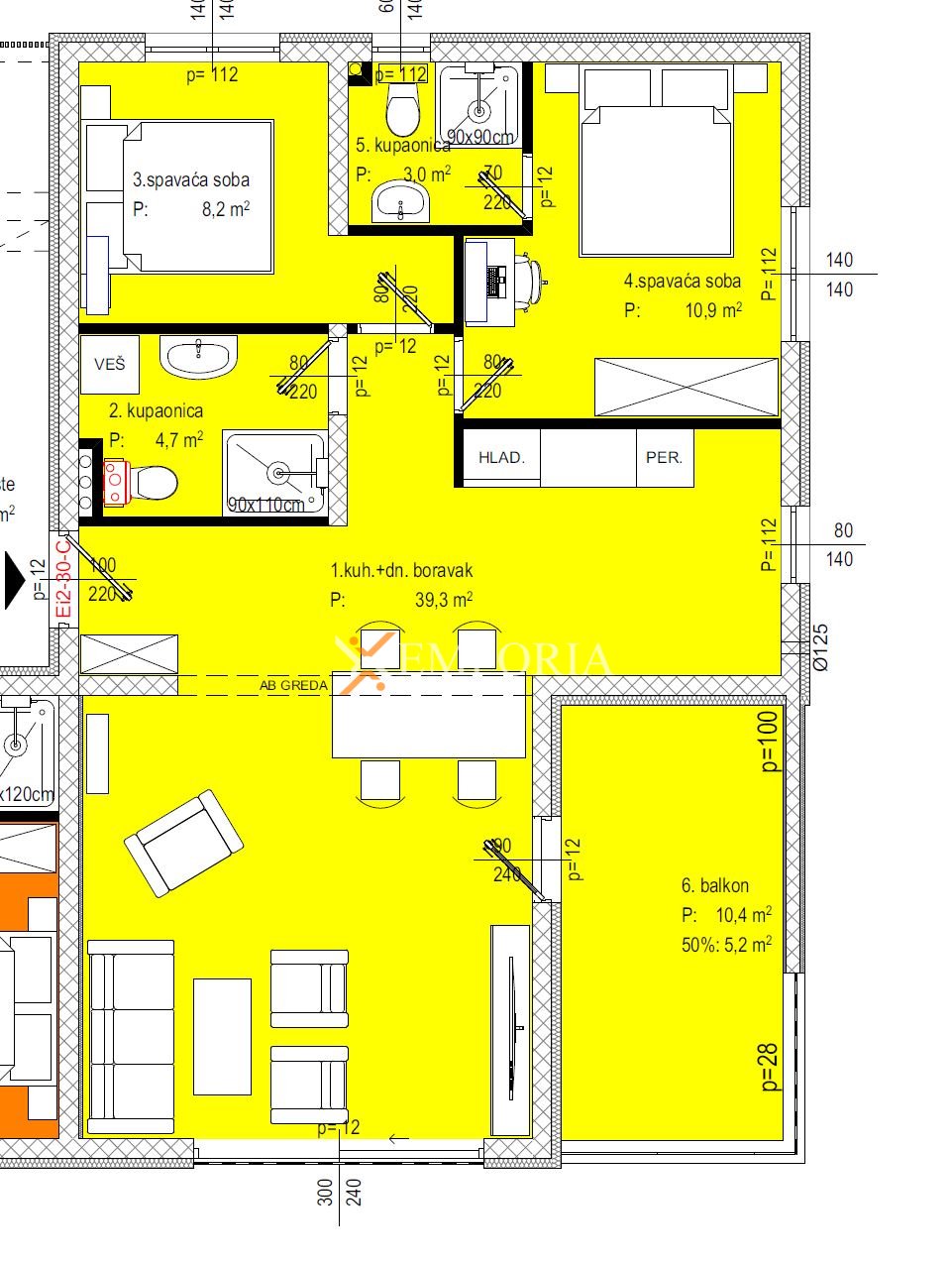
Die Wohnung besteht aus einem Flur, einer Küche mit Essbereich und Wohnzimmer, einem Hauptschlafzimmer mit eigenem Bad, einem weiteren Schlafzimmer, einem zusätzlichen Badezimmer und einer Terrasse. Eine großzügige Dachterrasse von 79,86 m² bietet viel Platz zum Entspannen und Genießen im Freien. Die Netto-Wohnfläche beträgt 91,30 m², während die Gesamtfläche einschließlich der Nebenteile 102,75 m² beträgt.
Zur Wohnung gehören zwei Parkplätze und eine Garage mit einer Fläche von 17,39 m².
Das Gebäude ist aus Stahlbetonwänden errichtet und verfügt über PVC-Fenster mit Dreifachverglasung, elektrische Rollläden und Insektenschutz. Die Fassade ist mit 10 cm Styropor isoliert, die Böden sind gefliest, und die Eingangstür ist einbruchsicher und feuerbeständig. Das Dach ist flach, neu und aus Beton.
Elektrische Fußbodenheizung ist in der Küche, im Essbereich, im Wohnzimmer und in den Badezimmern installiert. Klimaanlagen befinden sich im Wohnzimmer und in beiden Schlafzimmern. Die Wohnung verfügt über eigene Wasser- und Stromzähler und ist an die öffentliche Kanalisation angeschlossen. Die Zufahrt ist asphaltiert.
Der geplante Einzugstermin ist September 2026, und die Energieeffizienzklasse ist A+.
Dieses Penthouse in Zadar bietet die perfekte Kombination aus Komfort, Eleganz und Funktionalität, mit einer großen Dachterrasse für das echte mediterrane Lebensgefühl.
Crvene kuće ist ein ruhiges Stadtviertel im nördlichen Teil von Zadar, das hauptsächlich aus Einfamilienhäusern und einer Reihe von neuen Wohngebäuden besteht. Es ist weit genug von Hektik entfernt, und trotzdem dauert es nur etwa 10 Minuten Autofahrt, um das Stadtzentrum und genauso viel um den nächstgelegenen Strand zu erreichen. Deshalb ist dieser Stadtteil zum Wohnen wünschenswert.
Weitere Wohnungen im selben Gebäude: F1293, F1294, F1295 , F1297.
Falls Sie diese Immobilie woanders zu einem günstigeren Preis gesehen haben, gilt der gleiche Preis auch bei uns!
Link zu häufig gestellten Fragen
