Besichtigung über VIDEO ANRUF
RUFEN SIE UNS AN +385 23 300 000

Zum Verkauf steht eine großzügige Wohnung im attraktiven Stadtteil Diklo in Zadar, nur 130 Meter vom Meer und 4 km vom Stadtzentrum entfernt. Die gesamte Nettofläche inklusive aller Nebenflächen beträgt 133,62 m².
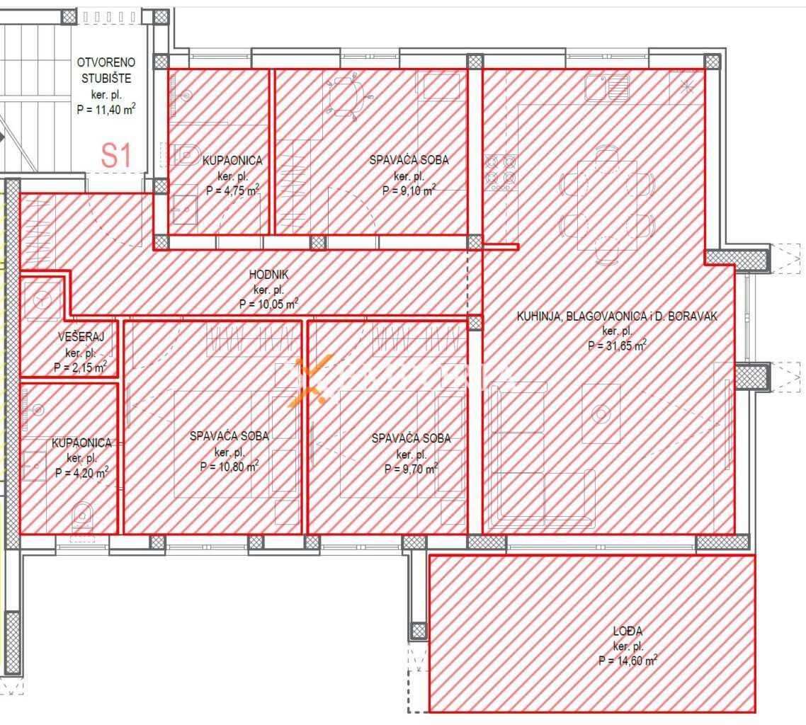
Die Raumaufteilung umfasst einen Flur, zwei Schlafzimmer, ein weiteres Schlafzimmer mit eigenem Bad, ein zusätzliches Badezimmer, einen Waschraum sowie eine Küche mit Ess- und Wohnzimmer. Vom Wohnbereich aus gelangt man auf die Loggia mit wunderschönem Meerblick.
Zur Wohnung gehören ein großer Garten mit 169,60 m² (davon 150 m² Grünfläche und 19,60 m² gepflasterter Bereich), zwei Parkplätze sowie ein geräumiger Abstellraum im Keller mit einer Fläche von 31,70 m² (15,85 m² netto).
Die Wohnung ist mit elektrischer Fußbodenheizung (außer in den Schlafzimmern) und vier Klimaanlagen ausgestattet – je eine in jedem Schlafzimmer und eine im Wohnzimmer. Die Fenster sind aus PVC mit Dreifachverglasung, elektrischen Rollläden und Insektenschutzgittern. Die Böden bestehen aus Fliesen und Parkett in den Schlafzimmern. Die Eingangstür ist einbruch- und feuerhemmend. Das Gebäude wurde aus Ziegel-Thermoblock und Betonwänden errichtet, die Fassade ist mit 12 cm Styropor isoliert. Das Objekt ist an die Kanalisation angeschlossen, das Dach ist neu, flach und aus Beton.
Diese Immobilie ist eine ideale Gelegenheit für komfortables Wohnen am Meer oder als Investition für die touristische Vermietung.
Diklo ist ein Stadtviertel von Zadar, das sich am Meer befindet, bekannt für Villas und Ferienobjekte. Es ist eins der schönsten Stadtviertel von Zadar, ausgezeichnet zum Leben, aber auch zum Urlaub machen. In der Umgebung befinden sich schöne Strände, Sportinhalte, zahlreiche Restaurants und Cafés. Diklo ist auch gut durch den öffentlichen Verkehr verbunden.
Mehr über den Ort finden Sie unter dem Link Zadar.
Unser komplettes Angebot von Immobilien in Zadar finden Sie hier.
In demselben Gebäude sind außerdem folgende Wohnungen verfügbar: F1263, F1264, F1265, F1266.
Falls Sie diese Immobilie woanders zu einem günstigeren Preis gesehen haben, gilt der gleiche Preis auch bei uns!
Link zu häufig gestellten Fragen
