Falls Sie diese Immobilie woanders zu einem günstigeren Preis gesehen haben, gilt der gleiche Preis auch bei uns!
Link zu häufig gestellten Fragen
Es wird nicht die genaue Adresse der Immobilie angezeigt
Besichtigung über VIDEO ANRUF
RUFEN SIE UNS AN +385 23 300 000

Zum Verkauf steht ein Grundstück mit einer Fläche von 511 m², gelegen in Zadar, Stadtteil Belafuža, nur 770 m vom Meer und 1,5 km vom Zentrum entfernt.
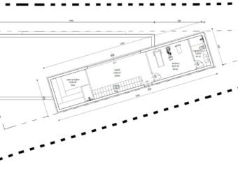
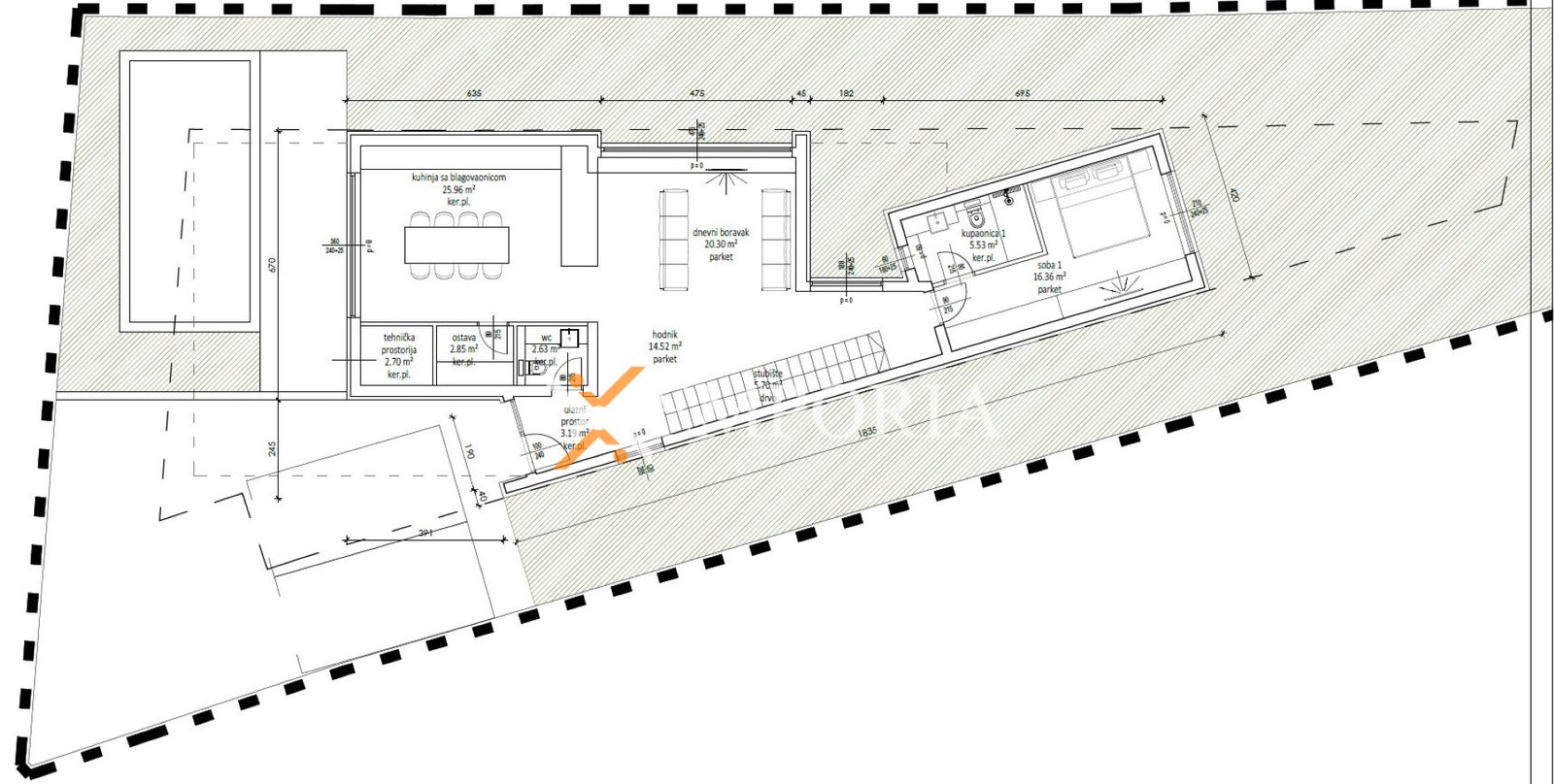
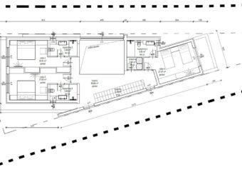
Für das Grundstück besteht ein Hauptprojekt für ein Haus mit zwei Etagen und zwei Pools – einer im Erdgeschoss und einer auf der Terrasse im zweiten Stock, mit 4 Schlafzimmern mit Badezimmern.
Die Breite des Grundstücks beträgt ca. 9 – 19 m, während die Länge ca. 40 m beträgt.
Strom und Wasser befinden sich direkt am Grundstück, während ein Anschluss an die Kanalisation möglich ist.
Belafuža ist ein Stadtviertel in Zadar, geeignet für ein angenehmes Familienleben, eine sehr gesuchte Lage auch für Junge Leute, da es sich immer noch nahe genug zu allen Inhalten und Zentrum befindet. Belafuža ist lediglich 15 Minuten zu Fuß vom Stadtzentrum entfernt. In der Nähe ist alles täglich Nötige zu finden: Schule, Kindergarten, Post, Restaurants und Cafes, Banken und Geschäfte.
Erfahren Sie mehr über Zadar und seine hervorragenden Möglichkeiten zum Kauf von Immobilien.
Entdecken Sie unser gesamtes Angebot an Häusern, Wohnungen, Appartements und Grundstücken zum Verkauf .
Falls Sie diese Immobilie woanders zu einem günstigeren Preis gesehen haben, gilt der gleiche Preis auch bei uns!
Link zu häufig gestellten Fragen
