Falls Sie diese Immobilie woanders zu einem günstigeren Preis gesehen haben, gilt der gleiche Preis auch bei uns!
Merkmale
Link zu häufig gestellten Fragen
Es wird nicht die genaue Adresse der Immobilie angezeigt
Besichtigung über VIDEO ANRUF
RUFEN SIE UNS AN +385 23 300 000

Verkauft wird ein wunderschönes Grundstück in erster Meeresreihe in Sveti Petar. Das Grundstück bietet einen spektakulären Blick auf das Meer und die berühmte kroatische Insel Galešnjak die in Form eines Herzens ist!
Das Grundstück hat eine Fläche von 2329 m2 und wird ausschließlich als Ganzes verkauft. Es ist 121,87 m lang und im oberen Teil ist es 25,83 m breit.
Die Erwirkung einer Baugenehmigung für eine Villa ist in Gange, somit wird der Baubeginn in schnellerer Zeit möglich sein. Momentan sind Änderungen des Projektes noch möglich.
Der Preis von 200 € / m2 ist sehr attraktiv für ein Grundstück in der ersten Meerreihe, und ein zusätzlicher Benefit ist, dass die Erwirkung der Baugenehmigung schon in Gang gesetzt worden ist.
Zahlung in Kryptowährung möglich (BitCoin, Ethereum).
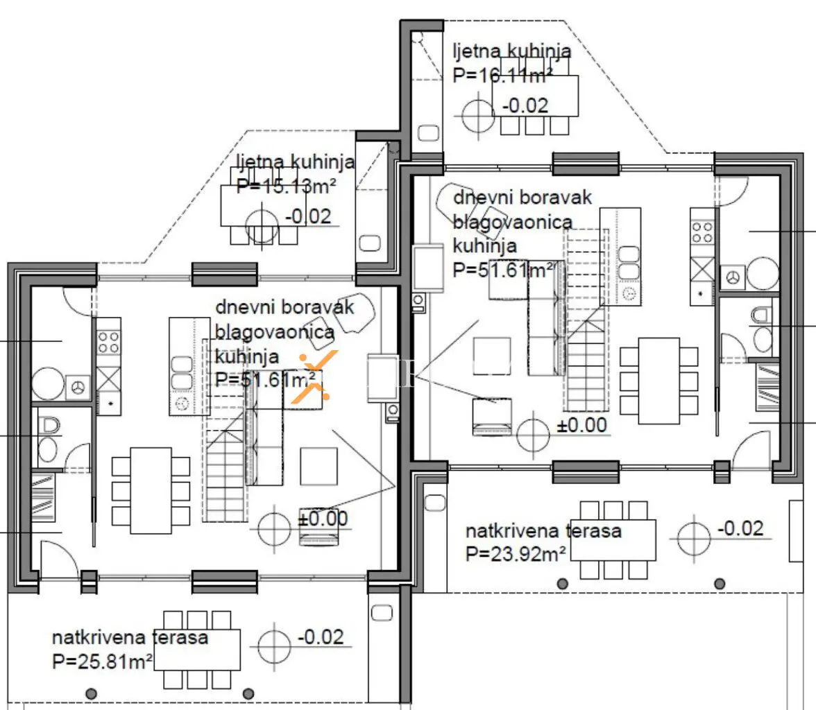
Die Villa ist als Doppelhaus konzipiert.
Im Erdgeschoss jedes Hauses befindet sich ein geräumiges Wohnzimmer mit Küche und Essbereich, Eingang, Toilette, eine vordere und eine hintere überdachte Terrasse. Beide Terrassen bieten die Möglichkeit eine Sommerküche mit Grill einzurichten. Vor den Terrassen befindet sich ein separater Pool mit wunderschönem Ausblick auf das Meer.
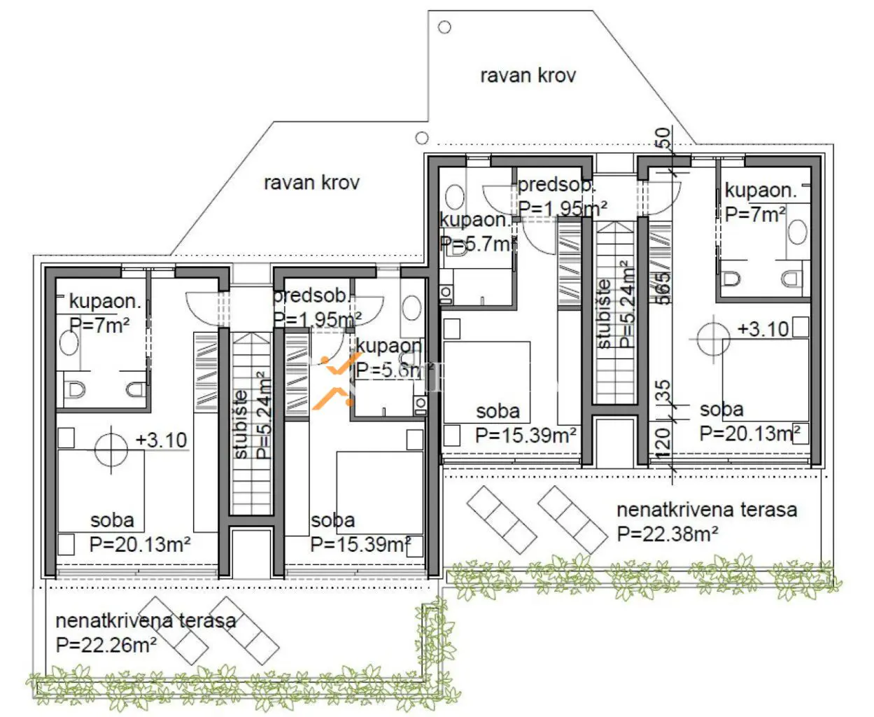
Ein Treppenhaus führt in den ersten Stock, wo sich zwei Schlafzimmer mit jeweils eigenem Bad und eigenem Ausgang auf die Terrasse befinden. Jedes Objekt hat eine eigene Garage.
Grundstück ist nur 20 km von Zadar und dem Flughafen in Zemunik entfernt. Es befindet sich 17 km vom Hafen von Gaženica, 10 km von Marina Dalmacija und 13 km von der Autobahn entfernt. Biograd, die Stadt und der Hafen, liegt 9 km südlich von diesem Grundstück, auf einer kleinen Halbinsel und dem Festland. Der kleine malerische Ort von Sveti Filip i Jakov liegt an der Küste des Pasman-Meeres, zwischen Zadar und Biograd und ist nur 4 km vom Grundstück entfernt.
Sveti Petar na Moru ist ein schöner kleiner touristischer Ort im Herzen Dalmatiens in der Nähe von Zadar. Der Ort ist für seine ehemaligen Sommerhäuser bekannt. Attraktiv machen die Ortschaft unter anderem, auch verschiedene Sportaktivitäten an Land und Meer die hier angeboten werden.
Eine Besonderheit von Sveti Petar ist auch die Nähe zum Nationalpark Kornaten, zu denen Ausflüge organisiert werden. Der malerische Pašman Kanal mit einer Reihe von kleinen Inseln schützt den Ort von starken Winden von der Meeresseite, was ein Vorteil für Schwimmer und Bootsfahrer ist. In unmittelbarer Nähe befindet sich Vransko jezero, der größte See in Kroatien, reich an Süßwasserfischen. Sveti Petar ist nur 15 Minuten von Zadar und dem Zemunik Flughafen entfernt.
Falls Sie diese Immobilie woanders zu einem günstigeren Preis gesehen haben, gilt der gleiche Preis auch bei uns!
Link zu häufig gestellten Fragen
