Falls Sie diese Immobilie woanders zu einem günstigeren Preis gesehen haben, gilt der gleiche Preis auch bei uns!
Link zu häufig gestellten Fragen
Es wird nicht die genaue Adresse der Immobilie angezeigt
Besichtigung über VIDEO ANRUF
RUFEN SIE UNS AN +385 23 300 000

Zum Verkauf steht eine Wohnung im 1. Stock eines modernen Neubaus in Petrčane, in zweiter Reihe zum Meer, nur 30 m von der Küste entfernt, während das Ortszentrum 500 m entfernt ist. Ein besonderer Vorteil dieser Immobilie ist der Meerblick aus der Wohnung selbst, kombiniert mit einer ruhigen und attraktiven Lage.
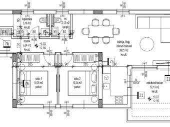
Der Grundriss ist funktional und gut aufgeteilt und umfasst einen Flur, zwei Schlafzimmer, ein Badezimmer, eine Küche mit Essbereich und Wohnzimmer sowie eine überdachte Terrasse. Die Nettonutzfläche der Wohnung beträgt 70,35 m2, während die gesamte Nettonutzfläche mit Nebenflächen 79,99 m2 beträgt.
Zur Immobilie gehören außerdem zwei Stellplätze, davon einer überdacht und einer nicht überdacht, was den Alltag zusätzlich erleichtert. Die Fertigstellung ist bis Ende 2026 geplant, und der erwartete Energieausweis ist A.
Es besteht die Möglichkeit, einen Liegeplatz für ein Boot zu erwerben.
Das Gebäude wird aus Ziegel-Thermoblöcken errichtet, während die Fassade mit 10 cm Styropor isoliert ist. Es sind Aluminiumfenster mit Dreifachverglasung, elektrischen Rollläden und Insektenschutzgittern eingebaut. Die Bodenbeläge bestehen aus Fliesen und Parkett, während die Eingangstür einbruchhemmend und feuerbeständig ist. Die Küche ist im Preis inbegriffen, was den Einzug erleichtert.
Diese Immobilie ist eine ausgezeichnete Wahl sowohl für den Eigenbedarf als auch als Investition, insbesondere aufgrund der Nähe zum Meer und der hochwertigen Bauweise.
Petrčane ist ein kleiner, zwischen Zadar und Nin gelegener Ort. Petrčane ist bekannt für seine exklusiven Villas, Hotels und das große Gastronomieangebot, wodurch auch das touristische Interesse für Petrčane sehr groß ist. Auf der einen Seite, wo sich ein grüner Wald befindet, hat sich die Hotelsiedlung Pinija gebildet und auf der nordwestlichen Seite die Feriensiedlung und das Hotel und Apartmentkomplex Punta Skala.
Erfahren Sie, warum Petrčane eine attraktive Lage für den Kauf von Immobilien ist.
Sehen Sie sich unser gesamtes Angebot an Immobilien zum Verkauf an.
Falls Sie diese Immobilie woanders zu einem günstigeren Preis gesehen haben, gilt der gleiche Preis auch bei uns!
Link zu häufig gestellten Fragen
