Falls Sie diese Immobilie woanders zu einem günstigeren Preis gesehen haben, gilt der gleiche Preis auch bei uns!
Link zu häufig gestellten Fragen
Es wird nicht die genaue Adresse der Immobilie angezeigt
Besichtigung über VIDEO ANRUF
RUFEN SIE UNS AN +385 23 300 000

Zum Verkauf steht ein exklusives Penthouse in einem Neubauprojekt in Sukošan, in erster Reihe zum Meer, nur 20 m von der Küste und 1,1 km vom Ortszentrum entfernt. Diese außergewöhnliche Immobilie verfügt über einen privaten Aufzug mit direktem Zugang zur Wohnung und bietet einen hervorragenden offenen Meerblick. Sie stellt eine einzigartige Gelegenheit für luxuriöses Wohnen oder eine prestigeträchtige Investition in einer der begehrtesten Küstenlagen dar.
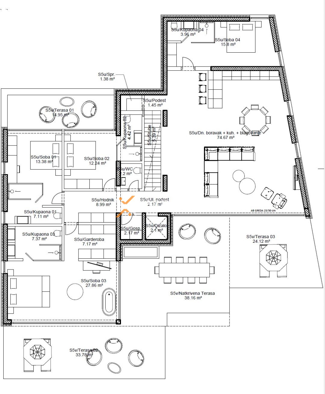
Das Penthouse befindet sich im 2. Stock und überzeugt durch einen großzügigen und hochwertigen Grundriss. Der Innenbereich umfasst einen Flur, drei Schlafzimmer mit jeweils eigenem Badezimmer, ein weiteres Schlafzimmer mit eigenem Badezimmer und Ankleideraum, ein separates WC, einen Hauswirtschaftsraum, eine Küche mit Essbereich und Wohnzimmer im offenen Konzept, drei nicht überdachte Terrassen sowie eine überdachte Terrasse. Die Netto-Nutzfläche des Wohnbereichs beträgt 248,76 m2, während die Dachterrassen ca. 185 m2 umfassen, davon sind 21,48 m2 überdacht. Die gesamte Netto-Nutzfläche der beschriebenen Räume beträgt 300,04 m2, während die Gesamtfläche inklusive Nebenflächen 337,00 m2 umfasst.
Ein besonderes Highlight dieser Immobilie ist der private Überlaufpool mit einer Fläche von 41,29 m2, Massagefunktion und keramischer Ausführung, gelegen auf der Dachterrasse mit Panoramablick auf das Meer. Zur Wohnung gehören außerdem ein Abstellraum mit 16,35 m2 sowie zwei Garagenstellplätze.
Das Penthouse ist designer möbliert und wird nach Fertigstellung bezugsfertig übergeben. Die Fertigstellung wird bis Sommer 2026 erwartet. Der erwartete Energieausweis ist A+, was für höchste Energieeffizienz und Wohnkomfort steht.
Für diese Immobilie fällt keine Immobilienerwerbssteuer an.
Das Gebäude wurde in Stahlbetonbauweise errichtet. Die Fassade ist mit 12 cm Styropor gedämmt, während die Vorderseite mit 15 cm Dämmung ausgeführt ist, um eine verbesserte Energieeffizienz zu gewährleisten. Die Fenster sind aus Aluminium mit Dreifachverglasung und Insektenschutzgittern ausgestattet.
Die Böden sind eine Kombination aus Fliesen und Parkett. Die Eingangstür ist einbruchhemmend und feuerbeständig. Das Dach ist neu, flach und aus Beton. Die gesamte Wohnung verfügt über Fußbodenheizung, während Klimaanlagen im Wohnzimmer und in den Schlafzimmern für ein angenehmes Raumklima das ganze Jahr über sorgen.
Für weitere Informationen oder zur Vereinbarung eines Besichtigungstermins stehen wir Ihnen gerne zur Verfügung.
Sukošan ist ein charmantes dalmatinisches Küstenstädtchen in der weitläufigen Bucht Zlatna Luka, nur 7 km von Zadar entfernt. Mit rund 3.000 Einwohnern sowie den umliegenden Orten Debeljak, Glavica und Gorica bietet es eine ruhige mediterrane Atmosphäre in Kombination mit hervorragender Verkehrsanbindung. Die wichtigste Attraktion ist die D-Marin Dalmacija, die größte Marina an der Adria, die Sukošan zu einem wahren Paradies für Segler und Meeresliebhaber macht.
Besonders attraktiv sind die vielfältigen Strände wie der beliebte Kinderparadies-Strand, der ruhigere Podvare-Strand oder der Kiesstrand Makarska, ebenso wie kleine, versteckte Buchten, die es zu entdecken gilt. Baden, Segeln und Spaziergänge entlang der Küste werden durch ein abwechslungsreiches Kultur- und Gesellschaftsleben ergänzt. Im Sommer erwarten Sie Fischerfeste, Konzerte, Folkloreabende und das Fest des hl. Kasijan mit Feuerwerk. Sportbegeisterte genießen den Schwimmmarathon, lokale Turniere oder die bekannte Regatta „Tanz mit den Segeln“.
Dank unberührter Natur, erstklassiger nautischer Infrastruktur und zahlreicher Veranstaltungen zählt Sukošan zu den begehrtesten Orten für den Kauf von Immobilien an der Adria – sei es als ruhiges Zuhause am Meer oder als attraktive Investition mit hohem Vermietungspotenzial.
Erfahren Sie, warum Sukošan eine attraktive Lage für den Kauf von Immobilien ist.
Sehen Sie sich unser gesamtes Angebot an Immobilien zum Verkauf an.
Im selben Gebäude stehen auch folgende Apartments zum Verkauf: A1573 und A1574.
Falls Sie diese Immobilie woanders zu einem günstigeren Preis gesehen haben, gilt der gleiche Preis auch bei uns!
Link zu häufig gestellten Fragen
