Falls Sie diese Immobilie woanders zu einem günstigeren Preis gesehen haben, gilt der gleiche Preis auch bei uns!
Link zu häufig gestellten Fragen
Es wird nicht die genaue Adresse der Immobilie angezeigt
Besichtigung über VIDEO ANRUF
RUFEN SIE UNS AN +385 23 300 000

Penthouse-Wohnung mit zwei Schlafzimmern auf Vir steht zum Verkauf. Dieses Apartment ist nur 190 m vom Meer entfernt. Es handelt sich um einen modernen Neubau.
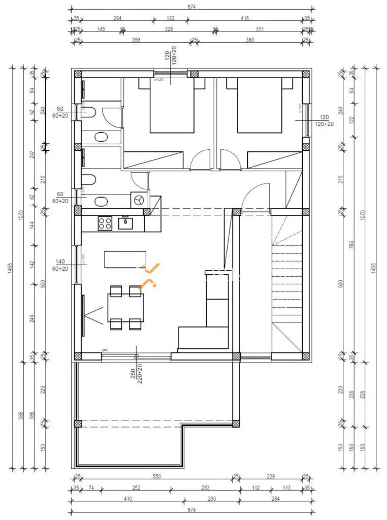
Dies ist eine Wohnung im 2. Stock. Die Raumaufteilung besteht aus einem Flur, einem Badezimmer, einem Schlafzimmer, einem Schlafzimmer mit Badezimmer, einer Küche mit Esszimmer und Wohnzimmer sowie einer überdachten Terrasse. Darüber hinaus verfügt die Wohnung über eine teilweise überdachte Dachterrasse mit einer Fläche von 86,94 m2. Die Nettonutzfläche der beschriebenen Räumlichkeiten beträgt 102,71 m2.
Zusätzlich verfügt die Wohnung über zwei Außenparkplätze. Die gesamte Nettofläche der Wohnung mit allen zusätzlichen Teilen beträgt 128,36 m2.
Die Entfernung dieser Immobilie vom Zentrum von Vir beträgt 250 m.
Wir betonen, dass diese Wohnungen von der Firma verkauft werden und der Käufer keine Immobilienerwebssteuer zahlen muss.
Der Bau des Gebäudes erfolgt mit gemauerten Thermoblöcken. Die Wärmedämmung der Fassade besteht aus 10 cm Styropor.
Die Bodenbeläge sind Fliesen. Die Fenster bestehen aus PVC-Material mit dreischichtigem Glas, elektrischen Rollläden und Moskitonetzen. Klimaanlagen im Wohnzimmer und in den Schlafzimmern. Darüber hinaus gibt es elektrische Fußbodenheizung in den Bädern. Weiters ist die Eingangstür der Wohnung einbruch- und feuersicher.
Energieausweis A wird erwartet.
Die Insel Vir ist eine der beliebtesten touristischen Destinationen in Kroatien. Sie liegt im äußersten Nordwesten der Gespanschaft Zadar. Sie ist umgeben mit Meer, dem Povljana Kanal und zahlreichen kleineren Buchten. Mit dem Festland ist sie durch eine Brücke verbunden.
Die 31,43 km lange Küste der Insel bietet eine große Wahl von wunderschönen Sand-, Stein- und Kieselstränden, an. Es sind volle Strände mit einer großen Auswahl von Inhalten und Aktivitäten, aber auch intime Buchten, umgeben mit einer unberührten Natur, zu finden. Die Strände der Insel Vir, teilweise auch unter Pinien gelegen, und das Kristall blaue Meer machen diese Insel zur perfekten Wahl für einen idealen Familienurlaub.
Außer dem Tourismus in den Sommermonaten, Vir ist auch im Winter eine Ruheoase für ein entspanntes Familienleben. Die Insel bietet alle notwendigen Inhalte für einen entspannten Alltag: Schule, Kindergarten, Geschäfte, Post, Restaurants und Cafés.
Vir ist von Zadar 26 km und von der nächsten Stadt, Nin, nur 12 km entfernt.
Mehr über diese Lage finden Sie unter dem Link Vir.
Hier sehen Sie unser weiteres Angebot von Apartments auf der Insel Vir.
In demselben Gebäude sind außerdem folgende Wohnungen verfügbar: A1388, A1389, A1391, A1393, A1533, A1534.
Falls Sie diese Immobilie woanders zu einem günstigeren Preis gesehen haben, gilt der gleiche Preis auch bei uns!
Link zu häufig gestellten Fragen
