Falls Sie diese Immobilie woanders zu einem günstigeren Preis gesehen haben, gilt der gleiche Preis auch bei uns!
Link zu häufig gestellten Fragen
Es wird nicht die genaue Adresse der Immobilie angezeigt
Besichtigung über VIDEO ANRUF
RUFEN SIE UNS AN +385 23 300 000

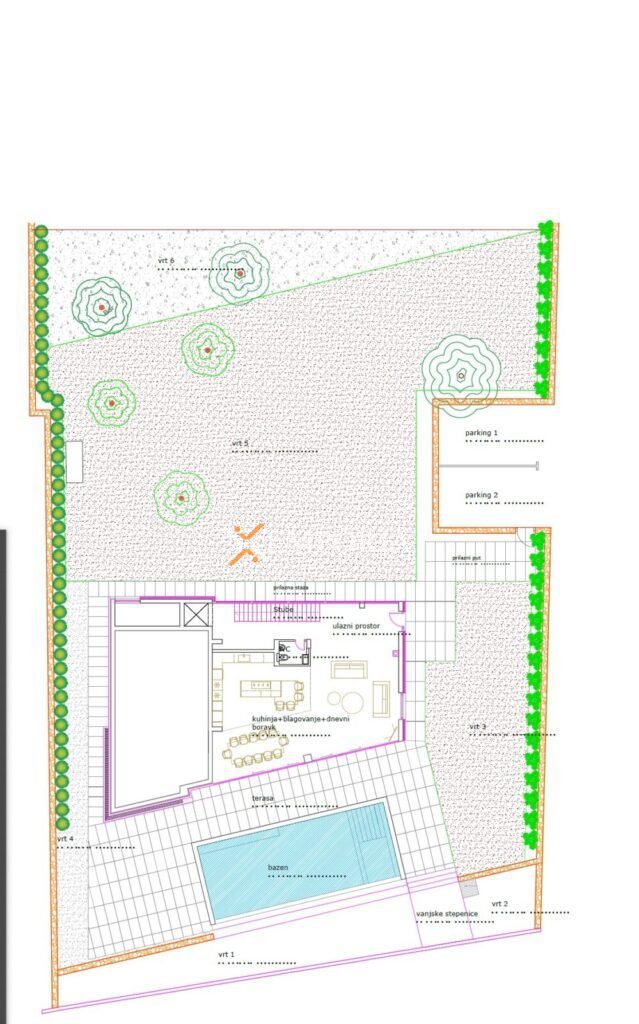
Zum Verkauf steht eine außergewöhnlich luxuriöse und moderne Villa in Sukošan, in erster Reihe zum Meer, ideal für luxuriöses Wohnen oder touristische Zwecke. Dieses prestigeträchtige Haus bietet erstklassiges Design und Ausstattung, darunter zwei Pools, ein Smart-Home-System, einen Aufzug und einen faszinierenden Blick auf das Adriatische Meer. Die Villa befindet sich auf einem Grundstück mit einer Fläche von 1,311 m², und die gesamte Nettofläche beträgt 704,80 m².
Die Villa besteht aus einem Keller, Erdgeschoss, ersten und zweiten Stock. Jeder Raum im Haus wurde sorgfältig entworfen, um maximalen Komfort und Luxus zu bieten, während gleichzeitig die Möglichkeit besteht, die natürliche Umgebung und den spektakulären Meerblick zu genießen.
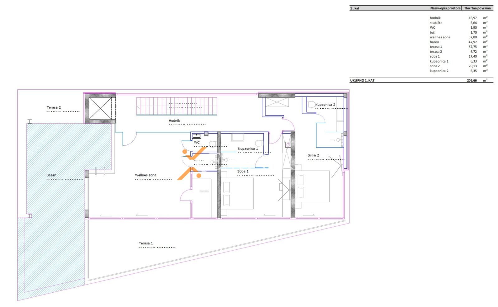
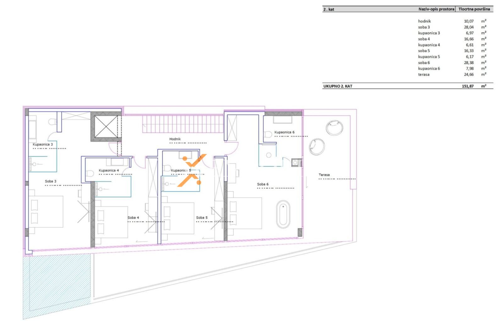
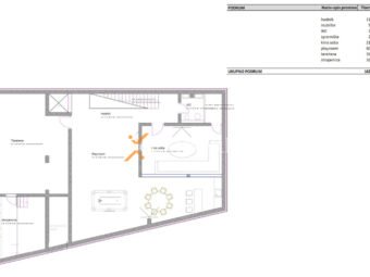
Im Keller (162,11 m²) befindet sich ein Fitnessraum, ein Maschinenraum, ein Spielzimmer (Billard, Darts, Tischfußball, Videospiele) und ein Heimkino, ideal zum Entspannen und für Unterhaltung mit Familie und Freunden. Das Erdgeschoss (284,43 m²) umfasst einen Flur, eine Küche mit Essbereich und Wohnzimmer, ein WC und eine unbedeckte Terrasse. Im ersten Stock (206,66 m²) befinden sich ein Flur, zwei luxuriöse Schlafzimmer mit eigenen Badezimmern, zwei überdachte Terrassen, ein Wellnessbereich, eine Sauna und ein Innenpool (47,97 m²), der sich zur Außenterrasse erstreckt und vollständig mit Glas geschlossen werden kann. Im zweiten Stock (151,87 m²) befinden sich ein Flur, vier geräumige Schlafzimmer, jedes mit eigenem Bad, sowie eine überdachte Terrasse, von der aus man einen unglaublichen Meerblick genießen kann.
Es stehen zwei Parkplätze zur Verfügung.
Diese Luxusvilla ist mit hochwertigem Designermöbel ausgestattet, und alle Geräte (Waschmaschinen, Trockner, Öfen, Dunstabzugshauben, Kühlschränke, Kaffeemaschinen) stammen von den besten Herstellern. Das Haus ist mit einem Smart-Home-System zur Steuerung ausgestattet, und alle Räume sind klimatisiert. Die Heizung erfolgt durch elektrische Fußbodenheizung, und die Fenster sind aus Aluminium mit Dreifachverglasung und elektrischen Rollläden, was eine hohe Energieeffizienz und Komfort unter allen Bedingungen gewährleistet.
Der Garten ist mit einem automatischen Bewässerungssystem ausgestattet. Die Fassade des Hauses ist mit 15 cm Styropor isoliert, und das Haus wurde mit den hochwertigsten Materialien gebaut und erfüllt vollständig die Energiestandards mit einem A-Zertifikat.
Diese Immobilie bietet eine außergewöhnliche Lage am Meer und ist die perfekte Wahl für eine Familie, die luxuriös leben möchte. Sie stellt auch eine ausgezeichnete Investition dar, da sie das Potenzial für touristische Vermietungen bietet. Aufgrund der hochwertigen Ausstattung, des Designs und der Lage sind hohe touristische Mietpreise und eine exzellente Auslastung möglich.
Sukošan ist ein charmantes dalmatinisches Küstenstädtchen in der weitläufigen Bucht Zlatna Luka, nur 7 km von Zadar entfernt. Mit rund 3.000 Einwohnern sowie den umliegenden Orten Debeljak, Glavica und Gorica bietet es eine ruhige mediterrane Atmosphäre in Kombination mit hervorragender Verkehrsanbindung. Die wichtigste Attraktion ist die D-Marin Dalmacija, die größte Marina an der Adria, die Sukošan zu einem wahren Paradies für Segler und Meeresliebhaber macht.
Besonders attraktiv sind die vielfältigen Strände wie der beliebte Kinderparadies-Strand, der ruhigere Podvare-Strand oder der Kiesstrand Makarska, ebenso wie kleine, versteckte Buchten, die es zu entdecken gilt. Baden, Segeln und Spaziergänge entlang der Küste werden durch ein abwechslungsreiches Kultur- und Gesellschaftsleben ergänzt. Im Sommer erwarten Sie Fischerfeste, Konzerte, Folkloreabende und das Fest des hl. Kasijan mit Feuerwerk. Sportbegeisterte genießen den Schwimmmarathon, lokale Turniere oder die bekannte Regatta „Tanz mit den Segeln“.
Dank unberührter Natur, erstklassiger nautischer Infrastruktur und zahlreicher Veranstaltungen zählt Sukošan zu den begehrtesten Orten für den Kauf von Immobilien an der Adria – sei es als ruhiges Zuhause am Meer oder als attraktive Investition mit hohem Vermietungspotenzial.
Unser komplettes Angebot von Immobilien in Sukošan finden sie hier.
Falls Sie diese Immobilie woanders zu einem günstigeren Preis gesehen haben, gilt der gleiche Preis auch bei uns!
Link zu häufig gestellten Fragen
