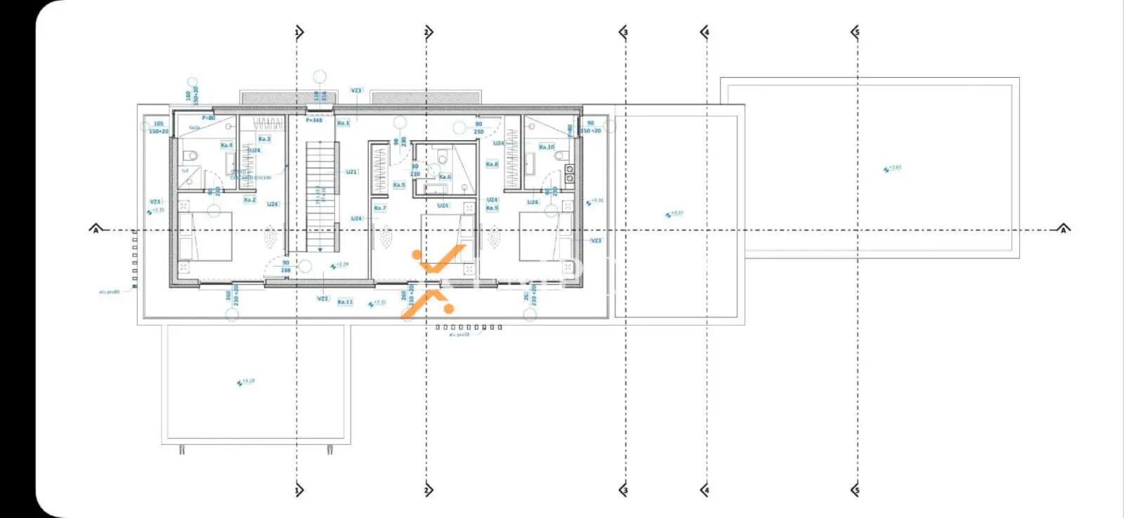
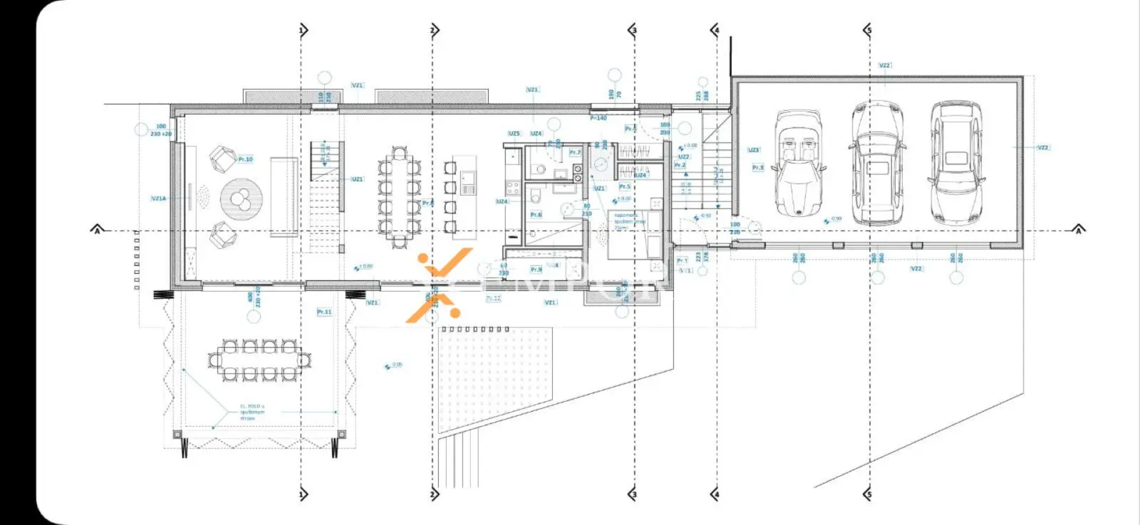
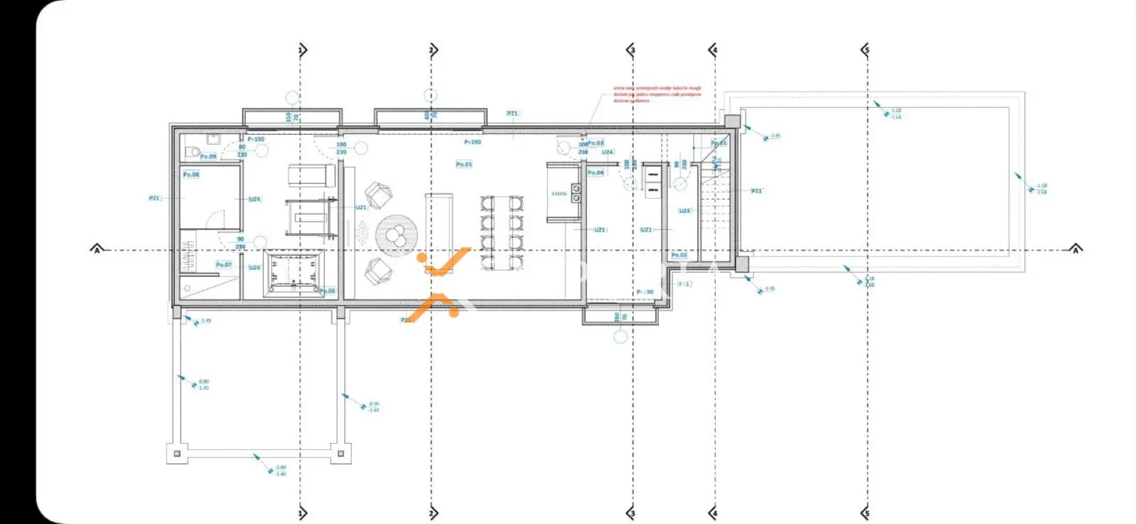
Baugrundstück mit Projekt zum Bau einer Villa, 1380 m2, Turanj
Baugrundstück zum Verkauf mit einem Projekt zum Bau einer Villa mit Schwimmbad. Die Erwirkung einer Baugenehmigung für eine Villa ist in Gange, somit wird der Baubeginn in schnellerer Zeit möglich sein. Die Grundstücksfläche beträgt 1380 m2.
Das Grundstück bietet einen wunderbaren Ausblick auf das Meer.
Die Entfernung zum Meer beträgt 1 km, während die Entfernung zum Ortszentrum nur 170 m beträgt.
Wir verfügen über alle erforderlichen Unterlagen – für weitere Informationen können Sie uns gerne kontaktieren!
Lage
Turanj ist ein malerscher touristischer Ort der durch eine Promenade “Lungo mare” mit dem Zentrum von Sv. Filip i Jakov verbunden ist. Die Nähe zu Stadtzentren, aber die Lage doch entfernt genug vom Stadttrubel machen diesen Ort ausgesprochen attraktiv zum Urlaubmachen und Leben. Die Ortschaft erstreckt sich entlang der 4 km langen Küste des Pašman-Kanals, umgeben von einem kleinen aber schönen Archipel mit 16 Inseln. Einen zusätzlichen Scharm verleihen der Ortschaft die zahlreichen Stege, die ein sicherer Anlegeplatz für Bootsfahrer sind.