Falls Sie diese Immobilie woanders zu einem günstigeren Preis gesehen haben, gilt der gleiche Preis auch bei uns!
Link zu häufig gestellten Fragen
Es wird nicht die genaue Adresse der Immobilie angezeigt
Besichtigung über VIDEO ANRUF
RUFEN SIE UNS AN +385 23 300 000

Zum Verkauf steht eine preislich attraktive Neubauwohnung in Vrsi, Ortsteil Zukve, nur 125 m vom Meer und 2 km vom Ortszentrum entfernt. Die Immobilie befindet sich im 1. Stock eines kleineren Wohngebäudes und eignet sich ideal als Feriendomizil, zur Eigennutzung oder zur touristischen Vermietung in Strandnähe.
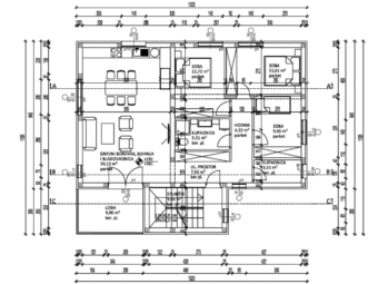
Die Raumaufteilung umfasst einen Eingangsbereich mit Flur, drei Schlafzimmer, zwei Badezimmer, ein Wohnzimmer mit Essbereich und Küche im offenen Konzept sowie eine überdachte Terrasse. Die Netto-Nutzfläche der beschriebenen Räume beträgt 97,75 m2, während die gesamte Nettofläche inklusive Nebenflächen 105,25 m2 beträgt. Zur Wohnung gehören zwei Parkplätze, was zusätzlichen Komfort und Mehrwert bietet.
Diese Neubauimmobilie überzeugt durch hochwertige Bauweise und funktionalen Grundriss und stellt gleichzeitig eine sichere und rentable Investition dar.
Für diese Immobilie fällt keine Immobilienerwerbssteuer an.
Das Gebäude wurde in Ziegelbauweise errichtet, und die Fassade ist mit 10 cm Wärmedämmung versehen. Die Fenster sind aus PVC mit Dreifachverglasung und elektrischen Rollläden ausgestattet, was Energieeffizienz und Wohnkomfort erhöht.
Die Böden sind eine Kombination aus Fliesen und Parkett. Die Eingangstür ist einbruchhemmend und feuerbeständig. Das Dach ist neu und geneigt. In den Badezimmern ist eine elektrische Fußbodenheizung installiert, während die übrigen Räume über vier Klimaanlagen verfügen, eine im Wohnzimmer und jeweils eine in den Schlafzimmern.
Die geplante Fertigstellung ist im Jahr 2026.
Für weitere Informationen oder zur Vereinbarung eines Besichtigungstermins stehen wir Ihnen gerne zur Verfügung.
Der Ort Vrsi befindet sich an der gleichnamigen Halbinsel, am nordwestlichen Teil Dalmatiens, von Zadar um 20 km und von der Königsstadt Nin nur 5 km entfernt. Vrsi hat eine 30 km lange Küste, mit zahlreichen Stränden und Buchten. Nahe zum Ort liegen zwei kleinere Inseln, Mišjak und Zečevo. Zečevo ist besonders interessant, da sich die Insel bei Ebbe in eine Halbinsel umwandelt. Im Sommer werden in der Umgebung zahlreiche Ereignisse, Fischerfeste und Folklore organisiert.
Das saubere Meer, die langen Sandstrände und Kieselbuchten sind ideal für einen traumhaften Sommerurlaub. Im Ort finden sie alles was für einen entspannten Alltag nötig ist: Post, Wechselstube, Geldautomat, Apotheke, Geschäfte, Cafés usw. Alle Liebhaber des Segelns werden dafür in Vrsi ideale Bedingungen finden. Im Ortszentrum befinden sich ein Fußballfeld und Basketballplatz. Alles zusammen, alles was sie für einen entspannten Familienurlaub im mediterranen Stil benötigen finden Sie in Vrsi.
Erfahren Sie, warum Vrsi eine attraktive Lage für den Kauf von Immobilien ist.
Sehen Sie sich unser gesamtes Angebot an Immobilien zum Verkauf an.
Im selben Gebäude stehen auch folgende Apartments zum Verkauf: A1566 und A1568.
Falls Sie diese Immobilie woanders zu einem günstigeren Preis gesehen haben, gilt der gleiche Preis auch bei uns!
Link zu häufig gestellten Fragen
