Falls Sie diese Immobilie woanders zu einem günstigeren Preis gesehen haben, gilt der gleiche Preis auch bei uns!
Link zu häufig gestellten Fragen
Es wird nicht die genaue Adresse der Immobilie angezeigt
Besichtigung über VIDEO ANRUF
RUFEN SIE UNS AN +385 23 300 000

In ruhiger Lage in Privlaka, nur wenige Gehminuten vom Meer entfernt, steht diese zweigeschossige Wohnung im ersten Stock zum Verkauf. Sie befindet sich links, als zweite Wohnung von der Straße, bietet eine teilweise Aussicht auf das Meer, eine großzügige Dachterrasse mit 45 m² Fläche und eine funktionale Raumaufteilung – ideal für dauerhaftes Wohnen oder zur Vermietung.
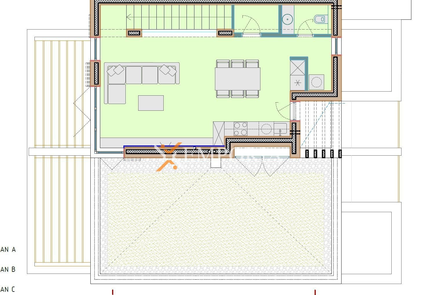
Die erste Ebene umfasst einen Flur, ein Badezimmer, zwei Schlafzimmer und eine teilweise überdachte Terrasse. Eine Innentreppe führt zur oberen Ebene mit Flur, Küche, Esszimmer, Wohnzimmer, zusätzlichem WC, Abstellraum sowie einer nicht überdachten Terrasse.
Die Netto-Wohnfläche beträgt 100,87 m². Zusätzlich gehören ein Außenabstellraum mit 2,38 m² sowie ein privater Parkplatz zur Wohnung. Die gesamte Nettofläche inklusive aller Zugehörigkeiten beträgt 105,75 m².
Beim Kauf fällt keine Immobilienerwerbssteuer an.
Die Wohnung ist mit Fußbodenheizung im gesamten Bereich ausgestattet, betrieben durch eine Wärmepumpe, sowie mit drei Klimaanlagen – im Wohnzimmer und in den Schlafzimmern.
Das Gebäude wurde mit Betonwänden errichtet und mit 15 cm starkem Styropor isoliert. Eingebaut sind PVC-Fenster mit Insektenschutz und Doppelverglasung. Die Eingangstür ist einbruch- und feuerhemmend, alle Böden sind mit Keramikfliesen versehen.
Die Wohnung ist gut zugänglich, und zusätzlich zum privaten Stellplatz stehen weitere Gemeinschaftsparkplätze zur Verfügung.
Der Einzug ist Anfang 2026 geplant, und die erwartete Energieeffizienzklasse ist A.
Für weitere Informationen oder zur Vereinbarung eines Besichtigungstermins kontaktieren Sie uns gerne.
Privlaka ist ein kleiner touristischer Ort, nur 15 Minuten Autofahrt von der Stadt Zadar entfernt. Privlaka hat Ihren idyllischen Platz zwischen der Königstadt Nin und der Insel Vir auf einer Halbinsel aus Sand gefunden. Das saubere, Crystal blaue Meer, lange paradiesische Buchten und Strände sind für Erholung und Entspannung geschaffen. Dieser Ort bietet alles an, was Sie für einen angenehmen Alltag brauchen: Geschäfte, Restaurants, Post, Ambulanz, Apotheke, Cafés. Genauso wiederum finden sie in Privlaka auch alles, was für einen perfekten Familienurlaub im mediterranen Stil nötig ist.
Mehr über den Ort finden Sie unter dem Link Privlaka.
Unser komplettes Angebot von Immobilien in Privlaka finden Sie hier.
Das Gebäude besteht aus insgesamt 10 Wohnungen. Folgende sind noch verfügbar: A1502, A1505, A1506.
Falls Sie diese Immobilie woanders zu einem günstigeren Preis gesehen haben, gilt der gleiche Preis auch bei uns!
Link zu häufig gestellten Fragen
